哥本哈根罗多乌尔幼儿园
浏览量: 收藏
项目信息





国家:丹麦 罗多乌尔
投资者: 罗多乌尔市政厅
建筑师: ONV 建筑设计事务所
建造公司: Scandi Byg A/S
摄影: Laila Halsteen 和 威卢克斯 A/S
建筑面积:900平方米
阳光为孩子们提供了户外玩耍的健康之源,木质露台顶部凉棚似的木格栅成为孩子们的遮阳伞,同时也为建筑投影出独特的光斑效果。

罗多乌尔是一个距离哥本哈根市中心西部仅8公里的小镇,这里有一个由排屋、别墅和公寓楼组成的混合住宅社区,周边有许多的绿地。绿地旁有一座大红色S形的建筑与前面的一所具有良好体育设施的学校毗邻,它就是用“草蜢”命名的幼儿园。建筑物表面个性的大红色、以及屋顶上的“烟囱天窗”使它成为这一区域的标志性建筑。
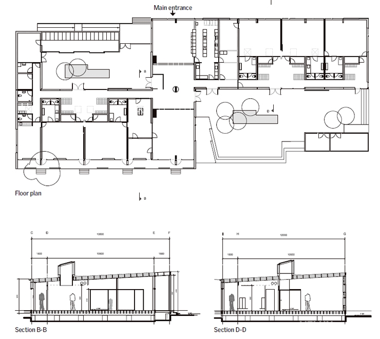
Main entrance: 主要入口
功能
您从停车场通过一条狭窄的道路可以到达幼儿园。穿过内部庭院即可到达建筑的中心:一个重要的社区活动室和一个开放式厨房。这个S型建筑内部由多个活动室和游戏室组成,包括几个浴室、儿童更衣室,教职人员的办公室等。
Main entrance: 主要入口
功能您从停车场通过一条狭窄的道路可以到达幼儿园。穿过内部庭院即可到达建筑的中心:一个重要的社区活动室和一个开放式厨房。这个S型建筑内部由多个活动室和游戏室组成,包括几个浴室、儿童更衣室,教职人员的办公室等。


在这个900平方米的幼儿园中有55名儿童。这里每个房间都是为孩子们做各种活动和游戏准备的。这里的孩子人均使用空间为16平方米,几乎是普通幼儿园孩子平均使用空间的4倍左右。这栋建筑为这里的孩子和老师们提供了舒适的生活方式,宽松的运动空间,积极的团队合作精神。自动通风和智能采光控制系统方便了孩子和教职员工的日常工作。在这里孩子们可以是 “小蚂蚱”,自由移动、跳跃、玩耍,而不是被关在笼子里圈养的“小鸡”。这所幼儿园特别抢手,需要长时间来排队等待入园,可能就是这里有宽敞空间、灵活的环境、充足的光线,这一切对孩子的成长有非常大的帮助。

采光设计
满足室内自然采光与通风,让日光最大化进入室内并均匀分布是这所幼儿园的一个设计亮点。建筑师设置在东、西两侧外墙上的窗户起着不同的作用。东侧墙的立窗设置成上下两排横向采光带,阳光轻缓的射入。西侧采用大落地窗,为防护下午阳光过强,还在外部设置了可推拉的木栅栏,能起到很好的隔热遮阳作用。
满足室内自然采光与通风,让日光最大化进入室内并均匀分布是这所幼儿园的一个设计亮点。建筑师设置在东、西两侧外墙上的窗户起着不同的作用。东侧墙的立窗设置成上下两排横向采光带,阳光轻缓的射入。西侧采用大落地窗,为防护下午阳光过强,还在外部设置了可推拉的木栅栏,能起到很好的隔热遮阳作用。

平屋面突出的反梁结构类似烟囱,它承载着威卢克斯智能电控窗,引导光线从屋顶进入,弥补了大进深空间的采光不足。这种强调夸张的表达了采光天窗自然通风的效果,同时突出的外观为丰富建筑第五立面加入了一种特殊元素。智能电控窗充分表现为尊重使用者对自然采光、通风的个性化需求,它可根据季节气候、阳光热量、居室功能、个人时间表等条件,设定多种程序化的通风采光模式,真正做到化繁为简,让生活与工作变得更轻松。
材料和结构
在建筑设计过程中,控制成本是很重要的,因为预算是不宽裕的。在日德兰半岛西北部的一家60平方米的工厂里,约90%的建筑结构在这里预制,现场仅用了短短4个月内就组装建成。所有选择的材料都是环保可持续的。木材和石膏用于大面积结构建造及覆盖,建筑外表皮覆盖了非常醒目的红色金属铝板。户外活动广场的材料是木质露台和柔软的橡胶沥青,为孩子提供了安全的游戏空间。
材料和结构
在建筑设计过程中,控制成本是很重要的,因为预算是不宽裕的。在日德兰半岛西北部的一家60平方米的工厂里,约90%的建筑结构在这里预制,现场仅用了短短4个月内就组装建成。所有选择的材料都是环保可持续的。木材和石膏用于大面积结构建造及覆盖,建筑外表皮覆盖了非常醒目的红色金属铝板。户外活动广场的材料是木质露台和柔软的橡胶沥青,为孩子提供了安全的游戏空间。
家居
工程






我要评论/留言