回归建筑本质,定格童年之趣
浏览量: 收藏

中国美术学院风景建筑设计研究总院
乐清市实验幼儿园于乐清市中心区城南街道,西邻金溪路,南望五环路。幼儿园用地面积7224㎡,是一所12个班级的规模的幼儿园;该园从2013年开始谋划设计,终于在2019年8月27日举行了隆重的开园典礼。长达6年的设计与建设,铸就了这座简洁却不简单的幼儿园。让我们一同领略这座向阳生长,幸福绽放的幼儿园建筑吧!
幼儿园的设计建造过程可谓是困难重重,建造预算的大幅调减、场地条件的先天不足、业主需求的纷繁复杂都是建筑设计师急需解决的问题。设计师以Active House理念健康、安全、舒适为核心,抛弃了虚有其表且徒增资金投入的建筑立面,一切从建筑的使用功能出发,以人为本,完成了这件“普适 朴实 普世”的作品。
因地制宜,建立景观化格局
基地一面临街,三面被小区建筑包围,这就导致了基地范围内的活动空间并不充足。

为了解决空间问题,设计师在这里采用了集中式布局,通过设置一个“方盒子”的建筑形体,并把这个建筑形体靠北布置,南侧留出一个空间作为前院的一个集中场地;除此以外,为了空间布局的多样性,设计师将“方盒子”水平错位偏移,又创造性的制造出西侧的入口前院和东侧的后院花园。如此一来,“一房三院”的景观化格局形成,解决了空间不足的问题。
▲“一房三院”的景观化格局
为了解决临街道路的问题,设计师将幼儿园的入口设置在了2楼,并设计了一些独特的建筑小品,这样做一方面建立了独特的校园文化空间和城市景观节点,将幼儿园入口空间开放给城市,形成一个可供孩子和家长停留、休息和等待的空间;另一方面高差处理也加强了幼儿园建筑与城市道路的距离感,形成幼儿园外部的安全的活动场地。
▲沿街立面
建筑入口景观化处理,宁静谦逊,豪不夸张,整体呈现一种轻松的氛围
▲沿街景观
坡地式景观设计手法与标志性雕塑结合形成一个独特的城市公共空间场所
创造性的采光设计,让孩子们不再“与外界隔绝”
▲室内中庭的明亮中庭(点击最下方“阅读原文”查看室内全景图)
以人为本的室内空间布局
▲室内布局
▲室内楼梯
▲一层中庭
▲二层中庭
室内材料以简洁的木材为主,营造了一个轻松活泼的氛围。局部装饰圆形窗洞活跃氛围为孩子们构建了恣意玩耍的惬意环境。孩子们在这里可以嬉戏休息、交流学习。
▲园内一角
▲专用教室
在专业活动室的设计中,包括阅读教室、烘焙教室等,设计师为了将教学需要用设计语言表达出来,采用了情景化设计,充分利用狭小空间,将不同的元素融入到特定空间中去,在丰富的教学、游戏与交流活动的空间里,让孩子们尽情享受着体验、探索、发现的乐趣。
▲阅读教室
▲园内一角
幼儿园的室外活动场地采用明度、纯度都比较高的颜色,旨在吸引儿童注意力。主体色调以暖色为主,充分调动儿童活动的积极性,局部使用冷色调进行穿插减少疲劳感。根据幼儿的身高和视野分不同年龄段去营造符合他们行为习惯的小尺度空间。
不同功能分区的组团被有序连接成整体,形成有趣且具有连续性的活动空间。有效的引导孩子们锻炼身体,同时增加孩子们之间的交往机会,提高其社交能力。
▲室外活动场地
不忘初心的建筑设计过程
真正好的建筑不需要华丽的外立面和奢华的装饰装修,需要的是设计师肯付出心思去利用设计的力量解决问题,抓住痛点,节省成本。乐清市实验幼儿园金溪园区就是很好的一个范本,在资金短缺、场地限制等各种不利条件下,设计师团队走访了众多的优秀幼儿园项目,多次与业主沟通方案,在真正了解了当下幼儿园建筑设计的各种问题的情况下,反复修改设计思路,不断的进行头脑风暴,才有了这样一个令所有人都满意的建筑作品,这样的情怀与责任心远比建筑本身要珍贵!
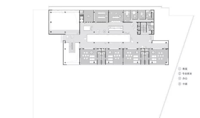
▲一层平面图
▲二层平面图
▲三层平面图

▲西立面及南立面
▲北立面及东立面
项目信息
项目阶段:施工完成
建设地点:浙江,温州
用地面积:7,224㎡ 建筑面积:5,450㎡
设计时间:2013年-2016年
施工时间:2017年-2019年
设计单位:中国美术学院风景建筑设计研究总院
合作单位:XUP & 温州建设集团建筑设计院
点击最下方“阅读原文”查看室内全景图
在建筑设计、施工、使用的全寿命周期内,在关注能源和保护环境的前提下,以建筑的健康性和舒适性为核心,以实现人的良好生活 (well-being) 为目标的一种建筑理念。
Active House| 往期精选
五里春秋泛文化艺术中心:一场城市伴山生活的艺术之旅
现代园林中的人文办公——中衡设计集团研发中心设计解析
招募中国建筑学会会员
可优先并优惠参加本会各类学术交流活动
可优先在中国建筑学会网站及刊物上发表作品
有机会受邀参加Active House国际会议交流及游学项目参观
优先且优惠参加Active House评估师的专业培训
……

家居
工程




我要评论/留言