瑞士-布伦纳(Brunner)别墅
浏览量: 收藏
项目信息
建筑师:鲁卡•塞尔瓦(Luca Selva)
客户/投资商:私人客户(布伦纳Brunner一家)
地点:瑞士 威特维尔 巴塞尔区
竣工时间:2006年
体积(新建筑):870立方米,原有建筑面积为116立方米
成本(花园除外):总造价553.000瑞士法郎,每立方米造价640瑞士法郎
对于那些拿着房屋照片前前后后仔细查看,试图想要找到翻修痕迹却所获无几的人们来说,这似乎是一次“温和”的翻修。但是,如果从粉刷一新的墙面、熠熠生辉的外观、截然不同的式样,以及全新的用料或功能上来看,又完全是一次“大刀阔斧”的翻修,因为它彻底改变了房屋的景观。
建筑师:鲁卡•塞尔瓦(Luca Selva)
客户/投资商:私人客户(布伦纳Brunner一家)
地点:瑞士 威特维尔 巴塞尔区
竣工时间:2006年
体积(新建筑):870立方米,原有建筑面积为116立方米
成本(花园除外):总造价553.000瑞士法郎,每立方米造价640瑞士法郎
对于那些拿着房屋照片前前后后仔细查看,试图想要找到翻修痕迹却所获无几的人们来说,这似乎是一次“温和”的翻修。但是,如果从粉刷一新的墙面、熠熠生辉的外观、截然不同的式样,以及全新的用料或功能上来看,又完全是一次“大刀阔斧”的翻修,因为它彻底改变了房屋的景观。
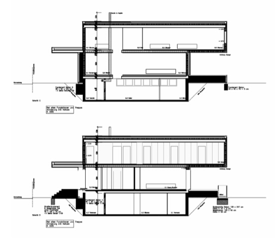
这幢别墅位于巴塞尔城市群中一个叫做威特维尔的村庄上。从巴塞尔市中心乘电车到威特维尔只需要15分钟。房屋座落在一个二十世纪八十年代修建的住宅区中,周围古木环绕,位置独特。布伦纳(Brunner)别墅旧貌换新颜,完成了从丑小鸭到美丽天鹅的完美蜕变。新增加的一层楼面连同全新的表面材质,使这幢房屋的用途和外观发生了前所未有的转变。
原来的房屋只有一层,是传统的低矮平房。曾经有一位医生把这里当做自己的诊所。2005年,一个有着三个孩子的家庭将这幢房子买了下来,客户希望对现有建筑进行扩建,为尽可能地保持原有风貌,使秀丽宜人的花园区不会受到改变和破坏。建筑师制定了纵向扩建而非横向,整个翻修工程的指导方针是对现象的感知而不是地域传统。
鲁卡•塞尔瓦的兴趣在于脱离原有的建筑模式,创造出一座全新的房屋,因而在房屋原来的基础上,高出地平面约1米的位置,加装了一个新的木质框架结构。为了使扩建部分与原有建筑看起来融合统一,建筑们开始为房子寻找新型的“包装方案”。
房屋表面采用了色泽呈咖啡色的铜质材料,这给建筑本身平添了几分神秘而古老的气息,似乎它已经历尽了岁月沧桑。在这次改造中,威卢克斯窗作为建筑立窗使用,而非传统的坡屋顶窗。窗体轮廓清晰醒目,在铜质墙面上显得格外突出,就好像一个观察力敏锐的爬行动物瞪着四处搜索的大眼睛。


通过位于铜质顶篷下狭长的混凝土楼梯,走进修复一新的布伦纳别墅,与以往截然不同的景象映入眼帘。对于房屋两层空间的设计利用,充分体现了设计师对于空间划分的深入研究,并引入了新方法。房屋底层展现了一个现代而开放的空间:卧室的通道与开放式厨房相互连接;人们可以从卧室直接通往露台,站在露台上的感觉就好像站在了游艇的甲板上一样。
宽阔的通道,充足的新鲜空气,充沛的阳光,这就是建筑底层的设计特点。宽敞的地下室保持了原有的状态,起着传统的技术与服务作用。在地下室的一隅还有一间面积不大的办公室,屋内装有矩形带状小窗,透过窗户可以欣赏到花园的部分景致。地下室还另外有一个单独的楼梯通向外界。
宽阔的通道,充足的新鲜空气,充沛的阳光,这就是建筑底层的设计特点。宽敞的地下室保持了原有的状态,起着传统的技术与服务作用。在地下室的一隅还有一间面积不大的办公室,屋内装有矩形带状小窗,透过窗户可以欣赏到花园的部分景致。地下室还另外有一个单独的楼梯通向外界。



家居
工程

我要评论/留言