贾平凹文化艺术馆 | 2020 Active House Award 卓越奖
浏览量: 收藏

Active 卓越奖
贾平凹文化艺术馆
专家评语-宋晔晧:贾平凹文化艺术馆有特色的地方在于通过设计诠释了当地文化传统。其中最有特色的是院落体系的现代化转译。当然项目也采用了全新的技术体系来完成传统的演绎,例如采用了来源自夯土启发的混凝土挂板。总体来说,文化馆的整体氛围具有强烈的在地性特征。
贾平凹文化艺术馆以贾平凹文学作品中所体现出的文化冲突为设计理念, 将简洁、硬朗、大气的外部造型,与富于变化的内部空间语汇相结合, 用建筑来解读贾平凹作品的内涵。
主动性
ACTIVENESS
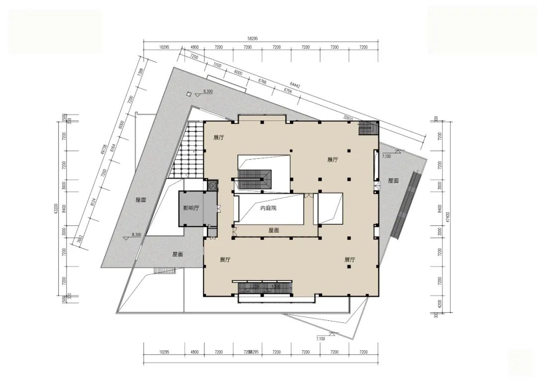
建筑方案将两个几何体在平面上进行叠加、旋转、碰撞、裂变,形成几组不规则的三角形院落空间。这些空间依附和穿插在建筑主体内外,形成了交错分散的多院落体系。正好体现出中国民居建筑的群落建筑特征,同时创造出外实内敞的空间感受。
从立有传统民居宅门的庭院空间进入,从围绕刻有贾平凹老师文学作品的浮雕墙走出。游览的过程,就是欣赏他文学艺术的过程。在这充满传统印记与时代碰撞感的建筑空间之中,既是我们对过往的一种缅怀,也引发着我们对未来的思考。
建筑实体相互穿插形成的几组内庭院,实现了建筑内部与外部空间相互渗透与交错,同时引导风的流通形成自然通风;庭院结合天窗,进一步优化了建筑的室内光环境品质;围绕建筑“凹”字形的中庭,形成了一处静水面空间,丰富了建筑的空间层次,游客穿行其中,也带来了愉悦的身心感受。
02
COMFORT
形体上利用实体与庭院空间的虚实的对比;建筑实体之间的旋转、交叉,重叠形成的特殊形态,营造出建筑的空间张力;建筑主体的凹字形平面与单坡的屋顶形式采撷自传统关中民居三合院建筑,同时也巧妙地与他名字中的"凹"字形成呼应。
建筑将关中民居屋子半边盖的单坡屋顶形式用充满质朴感的建筑材料来表达,使整个建筑充满历史的厚重感,同时又透露出时代的气息。简洁的外形与周边环境和而不同。
进入艺术馆,首先看到的是一个九米见方的庭院;庭院一隅,来自贾平凹故乡棣花镇的梨树,民居垂花门和简洁的高墙,共同创造出一幕熟悉而又陌生的场景。远处高起的单坡屋顶,暗示着即将进入一个庞大的民居聚落。垂花门与建筑外墙的镂空,形成一组空间以及符号上的隐喻。
内部空间利用上下两层建筑院落的叠合错位,形成丰富的院落和露台空间,使游人在其中可以清晰地感受到空间的节奏变化。由于展馆,露台,庭院这三种空间的有机组织,使得人在游走其中时可以俯瞰,可以仰视,可以穿行,可以远观而不得之。这三种空间的交织,使游人在游览过程中可以随时从贾平凹的文学氛围中剥离出来,不知不觉与作品中对乡村文化的追寻与重建,变革之中文化的碰撞与思考形成共鸣。
04
DESIGN HIGHLIGHTS
外立面材料是对混凝土、夯土墙肌再演绎。贾平凹文化艺术馆结构形式为两层钢框架结构,总高度12米。比一般民居建筑体积要高要大,所以外墙的夯土墙肌理采用了建筑废料生产的再生的混凝土板。
该材料尺寸分隔大、整体性好,能真实反映夯土材料肌理。屋项采用直立锁边灰黑色钢板,收边用3MM厚深灰色铝单板收边,反映出传统民居中的灰瓦的色彩和顺坡铺瓦的肌理。
05
DRAWINGS
竞赛其他获奖作品将于近期在“Active House”微信公众平台公布,敬请期待。
家居
工程

我要评论/留言