甘肃省夏河县博拉无锡希望小学图书室项目 | 2020 Active House Award 卓越奖
浏览量: 收藏

Active 卓越奖
甘肃省夏河县博拉无锡希望小学图书室项目
专家评语-张鹏举:项目在资金有限的情况下,利用了地方廉价的材料资源,在空间设计中有效适应了在地气候,成为一个能够平衡自然环境和人的舒适性需要的低造价建筑。除材料选择和尊重自然外,该建筑还在建筑尺度、开窗大小、能源利用等方面都遵循了适度的原则。

主动性
ACTIVENESS

02
COMFORT

03
ENERGY
基于项目所处气候条件的考虑,围护结构采用重质材料,达到了良好的热惰性,保证夏季热辐射不易进入建筑室内,冬季室外热空气不易散失。
窗墙比小,窗是热量流失最薄弱的部位,小的窗墙比能达到优良的节能效果。同时又采用优质的窗框材料和窗玻璃材料,使能源损失进一步减少。体形系数小,本项目为小体量建筑,在考虑形体时,优先采用了规则正方形平面,使外表面积最小化,减少了外表面散失的能量。
建筑设计中推崇“中庸适度”的原则,“节制奢华”,强调建筑的尺度宜人,“宫室得其度”,考虑建筑适度地顺应自然。在建筑全寿命周期内,选择当地材料,减少材料运输过程中的过度能源浪费。考虑各种自然资源的综合利用,减少使用人工资源。强调“天人合一”的思想原则。
05
DESIGN HIGHLIGHTS
自然采光,自然通风,采光蓄热中庭,自然通风侧天窗,小外窗,厚重外墙,厚屋顶。
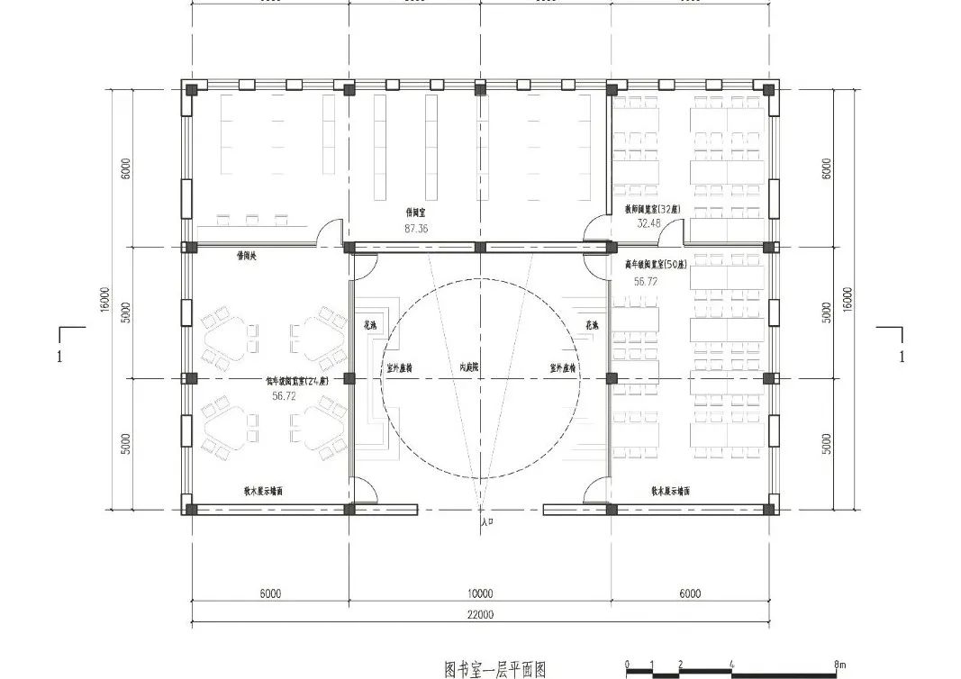
06
DRAWINGS
竞赛其他获奖作品将于近期在“Active House”微信公众平台公布,敬请期待。
家居
工程

我要评论/留言