House X 中东传统住宅的升级 | 2020 Active House Award 卓越奖
浏览量: 收藏

Active 卓越奖
House X
专家评语-张鹏举:项目设计以中东地区传统中庭式住宅为原型,从捕风塔中吸取智慧,结合形态空间设计采用主被动相结合的设计手法,运用了全屋智能控制技术等一系列主动系统技术,并在此基础上进行优化整合,达到一种能源、环境和舒适性的平衡。
项目地址:迪拜光伏园
设计机构:华南理工大学 x 中建科工集团联队
建筑项目为单层独立式住宅,场地位于迪拜光伏园,Mohammed bin Rashid Al Maktoum Solar Park,Dubai,将于2021年11月11日建成。
主动性
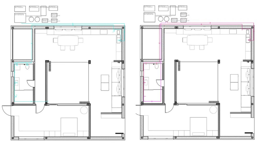
House X 以中东传统中庭式住宅为原型,从风塔中获得灵感,中庭上方创新的X形聚风叶片使通风成为可控的主动节能措施,可在多种模式下切换,对外界风环境、热环境的变化主动做出调整,最大化利用风来减少房屋能耗。
同时,完善的智能家居系统整合了暖通空调、遮阳、主动通风、灯光、家电、安防等方方面面,使房屋不仅能对室内外的环境变化主动做出应对,也能获取用户的信息和习惯,做出及时的反应。
未来住宅将不仅是一栋可持续建筑,也将促进一种可持续的生活方式。智能化的中庭使用户能在家完成办公、健身、社交等多种活动。高度装配式的结构使房屋具有极大的拓展可能性。
02
COMFORT



ENERGY

04



05
DESIGN HIGHLIGHTS
可持续生活方式:可拓展性
可持续建筑:主动式通风系统
光伏光热系统
DRAWINGS
▲总平面图
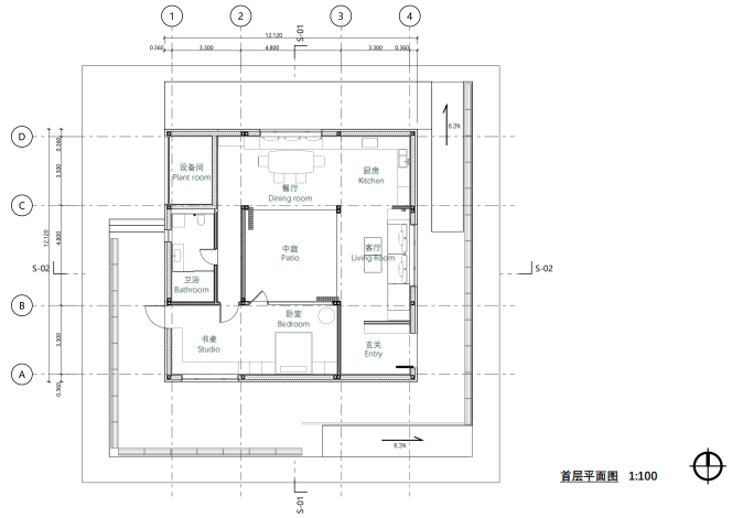
▲首层平面图
▲屋顶夹层平面图
▲立面图
▲立面图
▲剖面图
竞赛其他获奖作品将于近期在“Active House”微信公众平台公布,敬请期待。
家居
工程

我要评论/留言