自然之间,乡村转型下的家+ | 2020 Active House Award 卓越奖
浏览量: 收藏

Active 卓越奖
自然之间
专家评语-宋晔晧:“自然之间”是以某大学德州太阳能十项全能项目为基础完成的。在竞赛设计时充分考虑了太阳能十项全能竞赛的要求,并在竞赛中取得了不错的成绩。显然,太阳能十项全能竞赛的要求在很多方面与主动式建筑的要求完美契合,充分说明了面向未来的理想建筑有其共通之处。


主动性
ACTIVENESS
住宅采用智能控制系统(Delta 的 KNX 协议)来控制所有的主动式设备和立面上的被动遮阳系统,目的是整合被动系统和主动系统,通过共同协调运作协议进行控制。专用设备,会通过不同的协议进行通信。
所有收集到的信息将集中在一个服到达室内舒适,并保证建筑耗能低于产电量。所有设备的用电量将被监控,并通过 KNX 务器上,以便对它们进行处理和反馈。智能控制系统通过告知居住者设备的运行状态,并根据居住者不同的需求进行控制,使住宅智能化。
02
COMFORT
“自然之间”拥有三个不同功能的庭院来调节室内光线、通风速率以及房屋内热环境,创造良好的居住环境。另外,还采用了三种不同的类型的动态遮阳:屋顶上方的电动遮阳百叶、立面的竹门以及室内配备的电动窗帘,可根据不同的天气情况进行调节。
作品还利用烟囱效应来提高建筑通风效率,更高效的带走室内热量和水汽,提供新鲜的空气,提高室内热环境舒适度。
03
ENERGY
建筑能耗是该建筑系统的优化的目标。作品上部光伏板与屋面层之间的通风层可以带走屋面内部的热量,降低屋顶表面温度。
另外,光伏板的发电效率随着温度的降低而提高能有效提高光伏系统的效率。测试表明住宅的光伏发电量结余37-00 kWh,这意味着该住宅可以满足零能耗建筑标准。此外建筑应用可变表皮调节,可变表皮情况下采用门窗智能通风模式,根据室外温度控制开闭。
作品在建筑材料运用上强调“在地性”,设计中主要运用了稻草、木材、竹材和木屑4种源自本土的生物质材料作为主要建造材料,力求在营造舒适、健康、高效居住环境的同时,在建筑材料层面落实低碳环保的理念,并结合施工管理、后期使用实现建筑全生命周期的低碳环保。
此外,将场地南侧水池和房屋周围的雨水回收池连成整体形成循环系统,并利用水生植物和鱼类过滤雨水,夏季水池还可通过蒸发为建筑降温,达到节能和节水的双重目的。
05
DESIGN HIGHLIGHTS
结合Active House主动式建筑理念, 住宅整体为光伏建筑一体化系统,并结合暖通空调系统与热水系统对室内能耗进行控制,屋面与立面还采用可变表皮进行动态遮阳与智能通风,以此来达到健康舒适的使用要求。
通过技术来改善人们的生活环境,实现“自然之间” 的栖居方式,才是我们应该思考的问题。新建筑通过一个合院同保留的老建筑联系起来,合院在为原有老建筑提供较好采光通风的同时,也成为两个家庭成员的休憩空间。
在本建筑中置入了多个半开放空间性质的院落、廊道等,它所创造出的共享空间,促进家庭成员之间的气氛和睦、和谐交往。廊院为过度空间,通过可变表皮进行辐射的调节,创造出适合停留的休憩空间。
内院为玄关,通过合理的空间布局与技术手段创造出一个热缓冲空间,从而分隔室内外;新老建筑之间,通过一个合院进行连接,使得二者不再割裂,创造出和谐统一的氛围,使得新老建筑、年轻人与老年人之间产生更多的联系。
室内表现
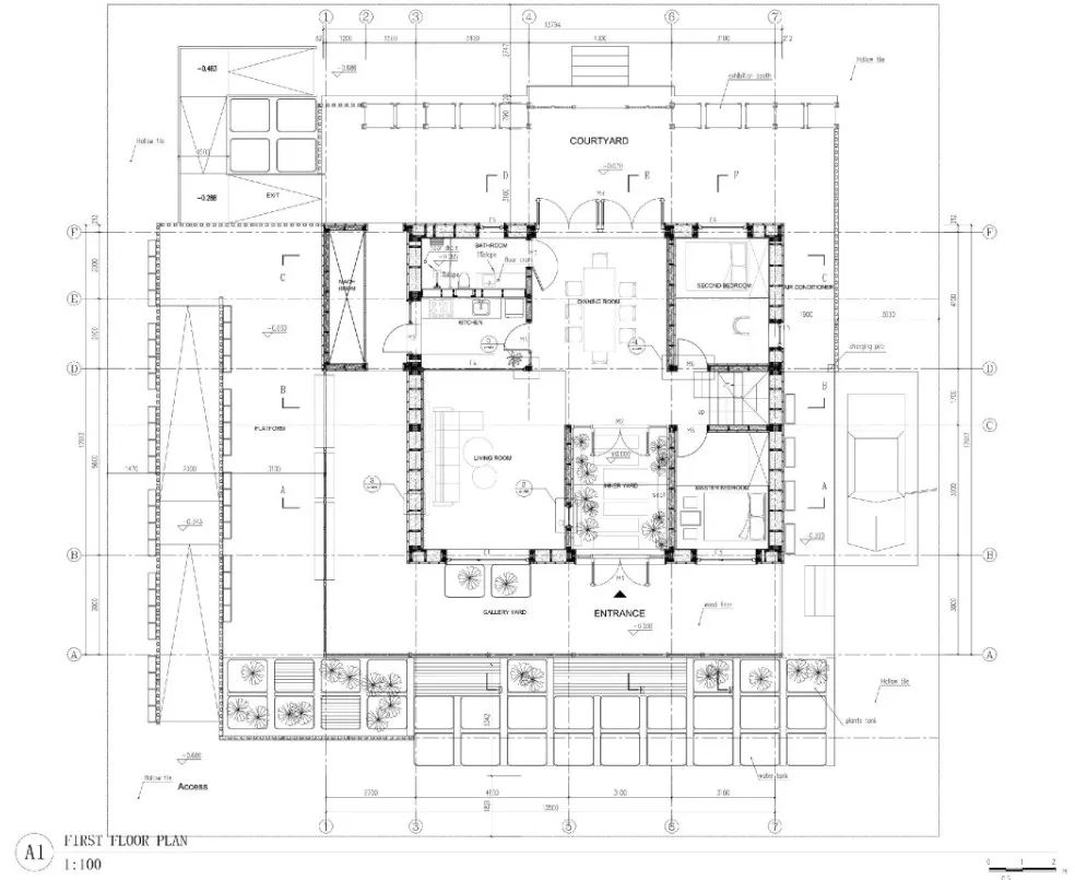
06
DRAWINGS
竞赛其他获奖作品将于近期在“Active House”微信公众平台公布,敬请期待。
家居
工程

我要评论/留言