2021 Active House Award 获奖作品 学生组 | 草原方舟
浏览量: 收藏

Active Excellent Award二等奖(学生组)
草原方舟
、
专家评语-冯正功:该项目的自动控制方案确保了发电设备和给排水设备在恶劣环境下的正常工况和维护,真正意义上可以实现全屋离人稳态运行。在实时监测室内环境和设备数据的前提下,草原方舟通过三个绿色建筑技艺:建筑结构的“微介入”、被动技术的“高性能”、主动技术的“高效率”,以及合理利用可再生能源,创造性地在严寒地区打造了近零能耗导向的可持续住宅。
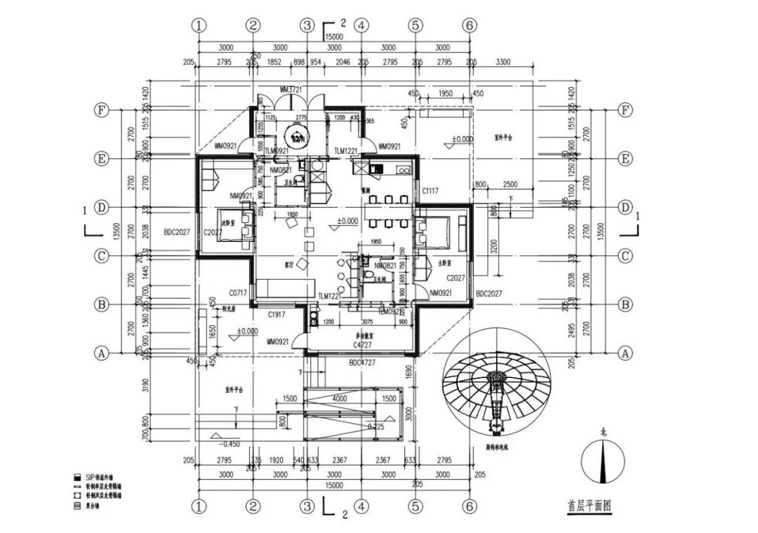
草原方舟可持续住宅位于张家口张北县德胜村,该实验性项目探讨严寒气候下快速装配式建筑的主被动结合的应对策略,建筑方案以牧民定居点“夏秋游牧,冬春舍饲”的特征,探究了牧民生活与游客来访的交互关系,同时探索新时代背景下建筑能源与传统游牧的可持续发展。根据竞赛的要求,该建筑在工厂中进行预建造,并在20天的现场建造周期内完成。
应用Active House主动式建筑理念打造,以使用者的健康舒适为核心,同时保持节能、环境的平衡状态。
01
主动性
ACTIVENESS
我们146平米的建筑一共安装了22个有效测点,包括温度,湿度,二氧化碳,pm2.5等。实时监测室内环境和设备数据,同时上传到云服务器作为长期饲养数据存储。本地组态屏幕上可以实时预览到当前数据和短期内变化曲线。同时所有设备还保留了手自一体切换功能,对用户友好。自动控制方案还确保了发电设备和给排水设备在恶劣环境下的正常工况和维护,真正意义上可以实现全屋离人稳态运行。
、
建筑运行阶段能耗在能源消耗总量中占比高,降低此类能耗是缓解环境问题的可行路径之一。因此草原方舟采用适宜绿色建筑技艺并合理利用可再生能源,打造了近零能耗导向的可持续住宅。草原方舟基于政策背景与牧民定居点的环境特征,结合田野调查、性能模拟和实验房测试。
通过三个策略:建筑结构的“轻介入”。被动技术的“高性能”。主动技术的“高效率”。提出了一种生态可持续导向的零能耗太阳能住宅体系在严寒地区应用的技术路径。相关技术策略包括但不限于建筑气密保温设计、复合墙面、平板重力热管和蓄热材料、斯特林电机热电联产、光伏屋顶、生物质能利用和暖通智能控制等。
建筑模数化的箱型钢结构体系能够整箱运输,灵活组合以适用于多种空间场景,提供了改造、再利用的可能性。多功能的外表皮设计,最大程度降低能耗、增加太阳能利用,实现环境友好的可持续目标。可变阳光房可改善建筑冬季的体形系数,并且在冬季布置种植花箱以满足家庭蔬菜需求。屋面收集的雨水通过过滤花箱进行回收,用于马桶冲水及室外灌溉,一年节约用水共计44吨,占两项用水需求的62.8%。
功能设计总体协调
草原方舟在屋顶及室内管廊的布局上追求设计与功能的一体化。夜间,光线自半透明光伏板后散射出,实现对蒙古包原型的现代转译。天花板管廊分为两个分支,躲开中央天窗并适应天花高度变化。由于无障碍要求和容纳地暖管道的需要,地面管廊尽可能的小,主要服务于厨房操作台两个卫生间作为地面管线和天花板管线垂直连接的枢纽。
清洁水节约
现代牧民常以地下水作为清洁的生产生活用水,草原方舟建筑通过收集屋顶雨水、雨水作为灌溉清洁用水、景观空间栽植低养护的乡土植物等措施,实现节约地下水的目标。屋顶雨水通过管道导入景观种植槽,槽内栽植草芦、芦竹等净水能力较强的植物,通过在景观种植槽设计分水板和溢流槽,使其可以应对不同雨量的影响,使收集的雨水可以得到充分的过滤,经过植物和土地处理后的雨水流入雨水箱储存回用。经测算,草原方舟每年可节约44.52立方米清洁水。

▲现场直击「2021 Active House Award中国区竞赛」参赛作品评审会圆满落幕
▲重磅!2021 Active House Award中国区室内竞赛获奖名单正式发布▲2021 Active House Award | Active 二等奖 | 广纸煤仓工业遗产可持续改造项目
▲2021 Active House Award | Active 二等奖 | 广州市从化图书馆二期工程项目
▲2021 Active House Award 获奖作品 | 东莞松山湖未来学校项目

家居
工程




我要评论/留言