2021 Active House Award | Active 一等奖 | 雄安设计中心项目
浏览量: 收藏

Active Excellent Award 一等奖
雄安设计中心
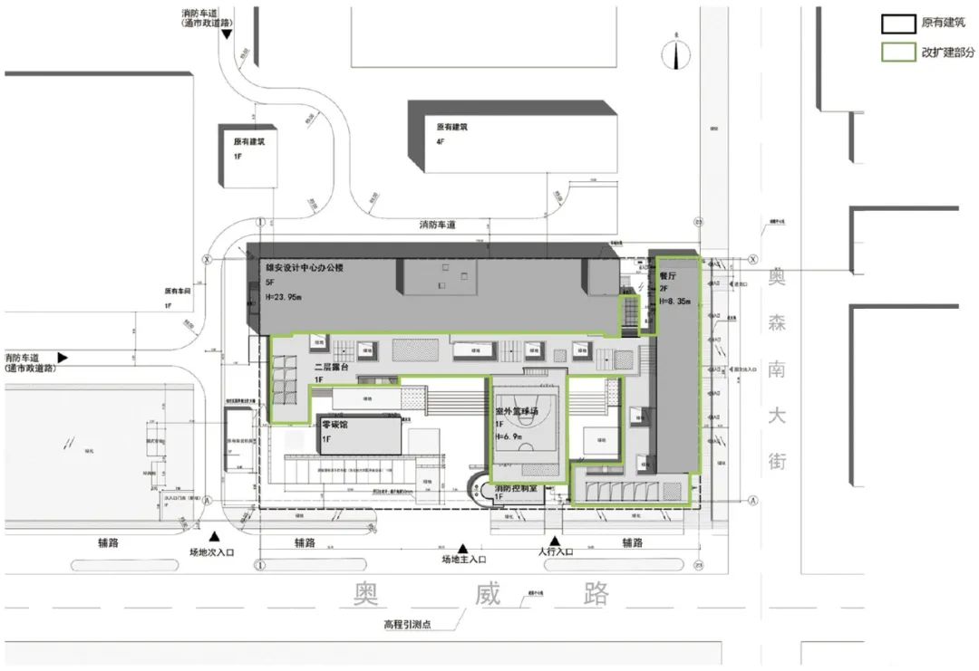
项目地址:河北省雄安新区
设计机构:中国建筑设计研究院有限公司、中国城市发展设计咨询有限公司
设计团队:崔愷、刘恒、徐风、倪斗、张崴、张维蕊、杨明、韩玲、祁润田、洪伟、龚小亮、云东岭、尹迎、徐涵涵、杨力吉、黄剑钊、王鑫
专家评语-冯正功:该项目遵循“微介入式”的改造策略,保留了100%的原建筑主体与85%的原有外立面,延长了“澳森制衣厂”的结构寿命,并为其空间注入新的活力。除了设置智慧能源管理平台、智能照明控制平台等高技外,更难得是将中国传统园林的室外檐廊和院落手法运用在空间构成中,形成最大限度的自然采光和自然通风效果。另一方面,他们从使用者的行为习惯出发考虑建筑的节能,通过6m×6m的模数单元实现会议、办公、展示、接待等多功能的自由切换。
改造后鸟瞰
雄安设计中心是由中国建设科技集团与同济大学共同投资,由中建科建设、设计、施工、运营一体化的项目。项目利用原有澳森制衣厂生产主楼进行改造,旨在为先期进驻雄安的国内外设计机构提供一个办公场所与交流平台,对未来雄安的未来发展具有引领示范意义。
改造建筑总规模约12317平米,原有主楼1-5层主要功能为租赁式办公,是未来雄安设计、艺术、文化、展示的交流的窗口。在城市界面的梳理上,设计以全周期绿色理念整合新旧建筑,形成一系列的设计与技术的低碳示范,并提出对原有园区边界进行局部退让,打造内在的交流平台,以此来回应雄安新区所倡导的“开放街区理念。与此同时,该项目也是践行国家关于“建筑师负责制”的发展导向,贯行以设计牵头的先行实践工程,设计团队全程对项目的设计品质、施工督造、投资使用、绿色落地等方面全程参与,多方位保障。
1.微介入”既有建筑改造
项目整体的改造策略遵循中国工程院崔愷院士提出的“微介入”改造方式,即不做整体的大拆大改,而是基于现有条件从基本的功能需求出发,局部优化,逐点激活,以谨慎合理的态度触碰旧有建筑,让老建筑焕发新的活力。
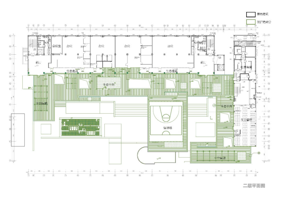
2.园林化生态平台引导健康行为
设计中心利用生长的理念创造共享的活力社区,用现代手法延续中国传统院落空间和集群组合的意念。倡导“生态优先、绿色发展”建设,杜绝千篇一律的“钢筋混凝土森林”。在室外景观及首层屋顶平台设置了一系列的生态交往空间,结合绿植乔木与景观棚架,提供给办公人群出门即享的绿色生态体验;首层的屋顶连廊把首层各个院落进行串联,引导生态使用路径。在会议中心以及主楼的屋顶上,还设置了篮球运动场,倡导健康低碳的生活方式。
设计注重地域性特点,因地制宜、实事求是,充分分析建筑所在地域的气候、资源、自然环境、经济、文化等特点,合理选用各类主动感知与调节技术,保证优质舒适的室内环境。每年节约电量64万度,节水量9658吨,相当于节约标准煤81.14吨,即每年减少CO2排放量202吨,SO2排放量6吨,NOX排放量3吨。创造出了兼具主动性、舒适性、高能源品质和环境品质的生态活力社区。
入园主入口
篮球场与建筑挑台
东配楼庭院
新旧建筑 空间叠加
会议室看向庭院
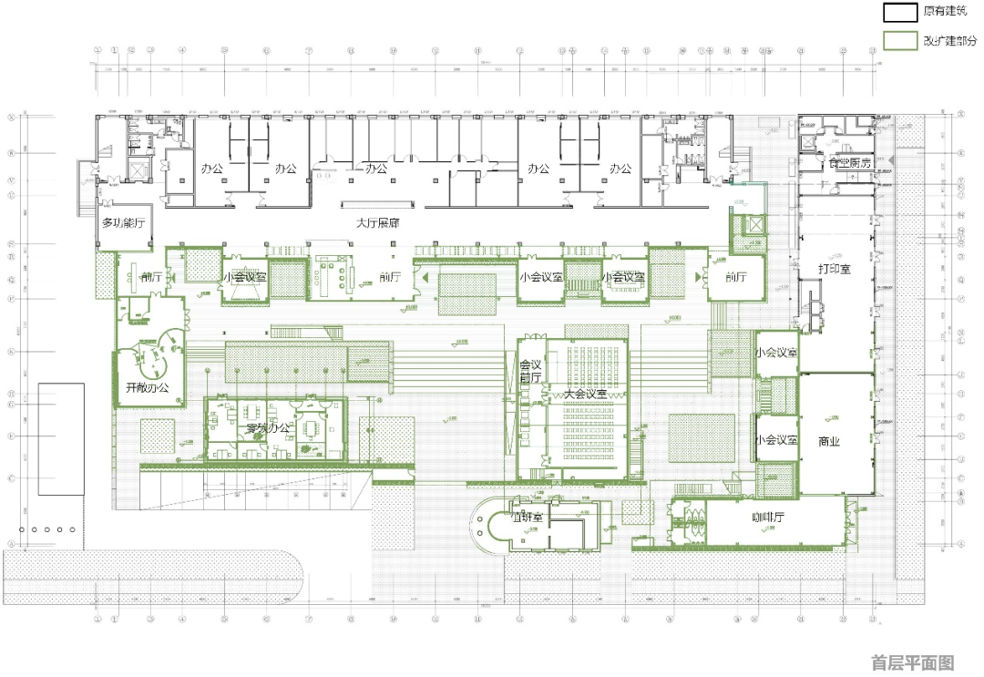
3.空间需求调控 主动减少用能
首层加建部分通过灰空间檐下外廊替代传统的室内交通走廊,节约近1006m²空调耗能面积, 主楼内走廊楼梯间等交通空间被定义为非采暖房间,形成缓冲过渡暖廊,减少空调耗能面积1950m²,两者合计减少2956 m²空调能耗面积,按普通办公建筑平均电耗( 80.0kWh/(㎡.a))估算,每年节约23.64万kWh用电量。
外侧利用原有无保温外墙,内侧增设幕墙作为围护结构,形成暖廊,不设空调,利用通风和南向采光,大幅减少用能空间,又对室内使用空间的调蓄起到明显作用。
02
主动性
ACTIVENESS
空间主动适变的是建筑绿色长寿化最有效的方式。加建部分采用钢结构装配的方式可拆解回收再利用。6m x 6m的模数单元实现会议、办公、展示、接待等功能自由切换。除结构外,幕墙和景观体系也秉承装配式理念下,构件可随时拆解替换,适应多种使用可能性。
零碳展示馆通过钢结构和优良的围护体系保证了建筑单一空间的超低能耗,如运用采用ALC高蓄热装配墙板、木索幕墙(K值0.8)、碳化聚苯板、双层憎水岩棉、高性能自动开启天窗、四位一体空调系统等,同时结合建筑本身的光伏产能实现建筑的正能耗,并在4年内达到整个建造运输运营阶段的全周期碳平衡。
建筑设置有智慧管理平台调控绿色使用的最优性能,智能照明控制平台,温湿度、PM2.5、CO2及TVOC浓度传感器,建筑设备管理系统及会议预约信息发布系统,实时主动感知建筑的用电、用水、设备运行、会议室使用、室内及室外空气质量的情况。并可联动控制照明灯具及新风机组,主动调节温湿度、照度、CO2和PM2.5浓度。
雄安设计中心以中国传统园林为意境,用室外檐廊代替封闭走廊,使院落穿插在室内空间之间,以形成最大限度的自然采光和自然通风效果。
形成室内良好的照度的同时也保证工作区无炫光,自然采光系数达到5%,采光均匀度达到0.55。同时通过高性能围护结构、高效新风过滤、24小时温湿度传感器与CO2调控系统提高热舒适度、室内CO2浓度≤700ppm,PM2.5浓度≤35μg/m³,其他污染物浓度低于《室内空气质量标准》GB/T18883规定限值的20%。
本项目通过采用Fluent,Design Builder,斯维尔等不同方向的专业模拟软件,对建筑风环境、噪声环境、热湿环境、自然通风及自然采光情况等指标情况均进行了性能化模拟分析。场地内冬季人行区风速小于5m/s,风速放大系数小于2,建筑迎风面与背风面表面风压差不超过5Pa。
石笼墙及会议中心有效阻隔冬季冷风不舒适感,减少了冷风渗透量。夏季及过渡季中91%的可开启外窗室内外表面风压差大于0.5Pa。有利于建筑自然通风。实测各主要功能空间自然通风换气次数均达到3次/h。
入口废砼石笼墙
此外,项目通过良好的建筑布局,主要功能房间与交通噪声、设备噪声进行分隔,楼板采用减振垫层提升撞击声隔声量,为使用者创造安静高效的室内环境。主楼多人办公区域室内噪声级≤40dB,东配楼商业室内噪声级≤50dB、餐厅区域室内噪声级≤45dB 多功能办公模块、独立会议室区域室内噪声级≤42.5dB。
被动优先主动调控的节能手段,大幅缩短用能时间。借助首层檐廊导风、檐下灰空间外廊、办公走廊缓冲蓄热、外挑檐廊遮阳、高性能围护结构等被动式设计手段,充分利用自然通风及自然采光,通过性能模拟优化设计,本项目的空调使用时间相较于普通办公建筑减少978小时,减少空调耗能面积2956 m²。根据实测数据2019年本项目耗能40.4万kWh,折合32.6kWh/㎡,相比引导值降低61.3%。同时设置有太阳能光伏面积500㎡,建筑产能比例达到26%。
通过设计在场地内实现光、电、水、绿、气方面的能量自平衡。光伏板吸收阳光产生的电能,将雨水收集和海绵调蓄后的净水提升,用于景观植物的浇灌,产生的氧气释放再给自然,又一次新的循环,内在往复。经实测2019年光伏屋面板全年产电能7.88万kWh,雨水回收系统年回收量188.4吨,实现景观灌溉用水22.9%的补充。
本项目保留100%的原建筑主体结构与85%的原有外立面,节省土建拆除与建设量近4万m³。同时就地循环再利用建筑废料,设置分层叠加的装配金属笼,填入混凝土碎块、黏土砖、废弃酒瓶与木桩。
生态海绵再生院
东配楼庭院
幕墙和景观体系也秉承装配理念下,整合一体,大量减少装饰。构件可随时拆解替换,适应多种使用可能性。
建筑材料选取上坚持绿色原则,加建部分采用钢结构装配式施工,玻璃碎渣作为混凝土骨料用于建筑与景观的地面,外墙与地面采用生态木塑板,室内墙面采用无机矿物质涂料等高性能环保材料。同时,通过高效节水器具、节水灌溉、雨水回收利用措施节约用水。根据实测数据2019年本项目用水1.09万吨,节水率47%。单位面积碳排放量179.5kgCO2/㎡,比先进值降低20.3%。

▲现场直击「2021 Active House Award中国区竞赛」参赛作品评审会圆满落幕
▲重磅!2021 Active House Award中国区室内竞赛获奖名单正式发布
▲2021 Active House Award | 一等奖 | 中国农业大学体艺中心项目
▲卧龙自然保护区都江堰大熊猫救护与疾病防控中心

家居
工程




我要评论/留言