2021 Active House Award | Active 二等奖 | 广州市从化图书馆二期工程项目
浏览量: 收藏

Active Sustainable Award 二等奖
广州市从化图书馆二期工程
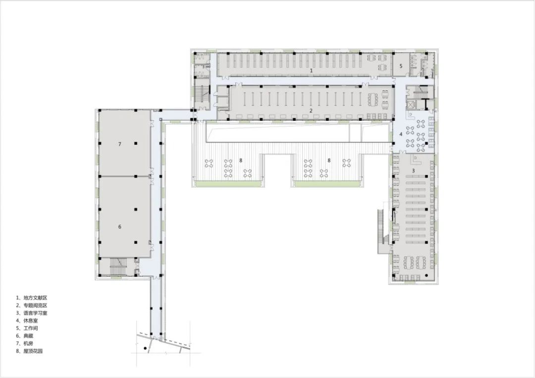
专家评语-桂学文:从化图书馆二期工程顺应沿河的自然环境,强调低密度的园林模式,通过U型的平面布局,并与一期图书馆形成围合庭院。建筑布局引入骑楼、天井、风巷、中庭等岭南建筑常用的传统形式,建筑采用下大上小、层层退台的立体园林绿化,使各层的阅览空间和公共空间有如首层庭院花园的感受,建筑底层以大进深布局适应灵活多变的功能需求。建筑设计简约现代、朴实大方,结合自身条件,综合利用能源系统和适宜技术,以得体的建构,用心设计契合现代教育特色的建筑,塑造了在建筑生命周期内,节能环保,舒适健康,建造成本可控的可持续平衡模式。
从化图书馆二期工程建设项目位于广州市从化区旧城区的东北部,紧邻穿越城市的流溪河,东侧为城市主干道河滨北路,北侧和西侧为规划的城市干道。用地轮廓由于顺应河流走向大体呈三角形,东、南、北三面均有城市道路,其中东、南面的河滨北路为城市主干道。
河滨北路与流溪河之间沿路设有比场地高出约7m的河堤。西北角为高层建筑档案馆。场地原为良好的荔枝果林,加上沿河一线的水景和绿道,自然环境十分优越。项目尊重现有自然环境,强调低密度的园林式建设。
通过 U 型的平面布局,与一期图书馆形成围合式庭院,同时建筑立面沿河岸展开,最大化利用河岸景观。在庭院一侧采用层层退台的立体园林绿化。建筑布局引入骑楼、天井、风巷、中庭等岭南建筑常用的建筑方式。
通过U形的平面布局,与一期主楼形成半围合式庭院,东南角打开的部分一方面使流溪河景观尽可能地渗入到建筑内部,另一方面有利于常年主导风东南风的引入,改善场地及建筑的通风环境。考虑到二期青少年阅览空间需兼顾活动、展览、沙龙等多样化的空间需求,1~3 层采用了大进深布局。
同时在体量上采用退台的形式,使每层的阅览空间都有如同首层的户外庭院感受。这些户外空中平台又通过东南角的打开与流溪河景观形成互动。
项目遵循可持续发展原则,充分体现绿色平衡理念,按照国家绿色建筑二星级标准进行设计、施工和运营,通过科学的整体设计,集成绿化配置、低能耗围护结构、太阳能利用、雨水回收再利用、智能化控制管理、建筑材料节约与优化利用等技术,实现节地、节能、节材、节水和环境保护的绿色建筑目标。
02
主动性
ACTIVENESS
项目尊重场地原有自然环境,通过主被动设计策略,强调低密度园林式建设,秉持以人为本的原则,使建筑满足舒适、高效、节能、自然等要求。通过中央管理系统的设置,使环境拥有主动感知和主动调节的功能;采取体量上的退台、庭院的围合、局部架空、柱廊骑楼式等空间手法,很好地适应了岭南高温高湿的气候条件;通过对空间结构上的平面和竖向分隔,使室内隔断灵活,能满足各种功能的需要。
主动感知
设中央管理系统,对系统的多联式空调机、新风机等设备实现监控,集中远程监视、测量、控制和运行记录。在阅览区等功能房间人员密集的地方,安装CO2、VOC和CO传感器监测室内空气质量,传感器与新风系统联动,监测参数为室内二氧化碳浓度和温度。
主动调节
采用变风量末端(VAVBOX)自带控制器,调节方便,有效提高了使用人员室内的舒适性。设置了室内空气质量监控系统,保证健康舒适的室内环境。
灵活多样的空间
二期青少年阅览空间需兼顾活动、展览、沙龙等多样化的空间需求,1~3 层采用了大进深布局,同时在体量上采用退台的形式,使每层的阅览空间都有如同首层的户外庭院感受。
二期面向主庭院的首层同样采用局部架空的形式,并设休闲咖啡座,为青少年及家长营造安全舒适的活动环境。二期在3~5 层通过退台形成空中花园露台,既减少了建筑对首层的压迫感,又与地面的中央庭院彼此呼应,形成竖向上连贯的立体景观系统,一直向流溪河延伸。
项目东、西、北三侧为6层框架结构的箱体建筑,中心为2-4层的功能用房,东西两厢通过廊道与一期主体建筑各层相通。通过对空间结构上的平面和竖向分隔,使室内隔断灵活,能满足各种功能的需要。
岭南特色空间设计
骑楼空间——由于一期主楼主体阅览室升高至3~5 层,东南向正立面的首二层空间便顺理成章地通过门厅退缩形成了连续的“骑楼”空间,骑楼内侧除门厅外还设有景观侧庭,结合以“卷轴”为意向的柱廊处 理,为读者提供了可遮风挡雨而又具有文化氛围的半户外开放公共活动空间。
庭院系统——建筑布局围绕大大小小的庭院展开,庭院不仅位于首层,还向上延伸至其他楼层,彼此连通形成立体的庭院系统,为读者提供多样化的阅读休憩空间,同时改善建筑热环境,提升空间舒适度。
适宜的绿化景观
合理采用屋顶绿化方式,绿化物种选择适宜当地气候和土壤条件的乡土植物,且采用包含乔、灌木的复层绿化。室外绿化选用了樟树、红继木、美丽异木棉、花叶良姜、鸭脚木、银叶金合欢、鸡蛋花、银边兰、花叶女贞、彩虹朱蕉、散尾葵、台湾草等绿化。
项目对室内外环境进行了采光、热湿环境等专项设计,通过使用可调节外遮阳、室内空气质量监控系统、变风量末端(VAVBOX)自带控制器、设备房隔音处理、高效照明灯具等建筑技术,在节能的同时营造舒适宜人的高品质室内环境;立体的庭院系统,为读者提供多样化的阅读休憩空间,同时改善建筑热环境,提升空间舒适度;设计将岭南本土特色气候空间以新的形式与使用功能糅合,很好地适应了本土气候条件,调节了局部物理环境。
可调节遮阳
密排的圆形管材与太阳光稍有角度便能达到同样致密的遮阳效果,同时使视线能够穿越,并有效漫射光线。圆管遮阳单元下部还设置种植槽,藤蔓植物可沿圆管攀爬而上,增强遮阳效果的同时为图书馆的立面增加了绿色意趣。
建筑外窗可开启面积不小于外窗总面积的 30%,双层复合立面在窗外楼层部位挑出70厘米形成水平遮阳板,结合垂直遮阳板,共同构成复合型双层表皮,并在不同朝向采用不同的立面布置方式。
项目发展了建筑双层表皮的概念∶将阅览区立面设计为具有遮阳和漫射光线功能的遮阳表皮,从而减少图书馆的能耗,并创造更宜于阅读的光环境;采用的大进深布局,设计了三条南北向贯通的"冷巷"空间,有效解决了大进深空间的通风采光问题,穿堂风道带动室内的空气流动。此外,本项目在建筑屋面安装额定总功率为30k的太阳能光伏发电系统,为道路、景观和广场照明提供清洁能源。
自然通风降温技术
建筑布局采用“同”字型,主朝向为南偏东30°。建筑内部设置了庭院,引入骑楼、天井、风巷、中庭等岭南建筑常用的建筑方式。在规划设计阶段对建筑室外风环境进行了模拟预测分析,建筑物周围人行区风速低于5m/s,不影响室外活动的舒适性和建筑通风。
针对二期建筑采用的大进深布局,特意设计了三条南北向贯通的“冷巷”空间,有效解决了大进深空间带来的通风采光问题。在气候适宜的交换季,只要打开走廊两侧面对冷巷的窗户,就能形成南北向的穿堂风道,带动室内的空气流动。
通过软件模拟分析显示,冷巷对室内自然通风助益显著。骑楼下还设置有连续的景观水体。东南风经过水面及骑楼阴影区得到冷却,进入建筑和庭院,调节微气候。
项目通过环境友好型系统设计,降低对环境的荷载,达到绿色可持续。通过土建与装修一体化设计施工,减少了材料的浪费,减少装修施工中的噪声污染,节省装修施工时间和能量消耗;采用如雨水回收系统和节水器具等措施,实现各种水资源的合理利用,减少建筑物对水资源的消耗;通过建设中使用如预拌混凝土、铝合金等环保建筑材料,降低项目所使用的建筑材料在生产、运输、施工各环节对环境的负面影响。
总平面图
首层总平面图
二层平面图
三层平面图
四层平面图
五层平面图
六层平面图
屋顶平面图
剖面图
剖面图
立面图
立面图
竞赛其他获奖作品将于近期在“Active House”微信公众平台公布,敬请期待。

▲现场直击「2021 Active House Award中国区竞赛」参赛作品评审会圆满落幕
▲重磅!2021 Active House Award中国区室内竞赛获奖名单正式发布▲2021 Active House Award | 一等奖 | 中国农业大学体艺中心项目
▲2021 Active House Award | Active 一等奖 | 雄安设计中心项目
▲2021 Active House Award | 一等奖 | 高碑店列车新城绿色智慧建筑示范中心主题馆

家居
工程





我要评论/留言