2021 Active House Award 获奖作品 | 济南市轨道交通R3线一期工程龙洞停车场综合楼项目
浏览量: 收藏

Active Sustainable Award 二等奖
济南市轨道交通R3线一期工程龙洞停车场综合楼
专家评语-刘艺:项目具有北方建筑的封闭厚重感,同时内部又有着丰富的空间变化。这些变化与阳光、能量等生态因子相关,加上屋顶太阳能板、可调节百叶、再生水源等均体现了主动式建筑的技术特征。作为一个日常功能的建筑,拥有超越日常的建筑质量和品味,体现了建筑师的努力和能力。
“城外青山城内湖,凭谁写出辋川图。细细烟雨似江南,人家半住柳荫中。”济南这座城市给人留下的印象一直如此的诗情画意,这里不仅有文人墨客留下的足迹,更有“四面荷花三面柳,一城山色半城湖”而享誉国内的优秀自然景观,在济南这座城市里,建筑要琢磨如何与济南城市特质相契合,山的稳重,水的灵动,因山而落,因水而成。
基地西南两侧为龙洞风景区,东临大辛河,背山面水,环境优美。基于这样的环境条件,建筑设计团队将设计重点放在与山体环境、滨河景观的对话关系,将建筑“隐”于环境之中。
建筑的形象从山水中寻求灵感,建筑形体采用较整的体量向龙洞景区山体倾斜,形成积极地对话关系,面向大辛河景观采用丰富的小体量形成面向河道景观的小尺度界面,建筑立面语言以龙洞景区的山石为原型,采用毛石砌筑做法,同时邻水的建筑形态则采用水岸屋舍错落有致的肌理形态,从而形成山水相依的整体建筑形象。
01
主动性
ACTIVENESS
建筑通过可开启的外窗及中庭顶部的天窗实现建筑内部温度、湿度的调节,同时在建筑东、南、西三面通过设置可调节的百叶实现外窗的遮阳策略。
建筑内部空间格局回应了济南古城“城即园林”的描述,内部犹如一座立体园林,环绕中庭设置游走步道,最终到达屋面,南部群山尽收眼底。斜向的形体结合上人绿化屋面,也建立起建筑与环境积极的对话。
建筑地上四层,通过植入通高的中庭空间及多处空中院落,极大改善了建筑内部的风、光、热等物理环境品质,建筑内所有房间(除部分设备机房及库房外)均能实现自然采光通风。
本工程夏季制冷采用变冷媒流量多联空调系统,按楼层划分系统,按需开启空调系统,同时配合精装修图纸,调整空调送风口位置及送风形式,使室内协调美观,所采用空调设备,能效限定值均高于节能规范的IPLV及APF值。新风采用新风换气机,有效利用排风冷热量,空调风系统单位风量耗功率小于0.24W/(m3/h)。
本项目采用太阳能集中热水技术,太阳能热水系统采用双水箱-集热开式-直接换热-内置电辅热强制循环系统,优先充分利用太阳能,保证用水舒适可靠的前提下,达到节能的效果。
独立太阳能光伏照明系统,采用蓄电池储能,灵活机动、节能环保。采用全变频恒压供水设备,根据用户用水量变化调整系统流量,达到节能目的。建筑优先采用自然通风降温技术,有效延长过渡季,提升舒适度的同时降低能源消耗。
本项目通过多种方式降低建筑对周边环境的影响,通过利用可再生水源、中水回用等措施降低污水的排放,增加水的循环利用。采用节水型卫生器具,卫生器具选用一级用水效率等级的产品。同时,项目采用高性能建材、可再循环材料,有效减少建筑垃圾,降低环境污染程度。
本项目应用BIM技术,由建筑产业链各个环节共同参与来对建筑物数据进行不断地插入、完整、丰富,并为各相关方来提取使用,达到绿色低碳化设计、绿色施工、成本管控、方便运营维护等目的。
1.节能与能源利用
本项目按照绿色建筑三星级进行设计,并于2020年3月取得“三星级绿色建筑设计标识证书”。
高效能设备和系统:本项目生活给水系统、热水给水系统采用变频加压供水设备;公共部位的照明采用高效光源和高效灯具,并采用声光控制等节能控制措施;电梯采用节能电梯,并采用群控等节能控制措施;采用节能型电气设备,节能高效照明。公共部位的照明采用高效光源和高效灯具,并采用声光控制等节能控制措施。
2.节水与水资源利用
设计完善的给排水方案,包含给水系统、排水系统、消防系统、景观水系统。严格控制用水总量,提高用水效率,限制水功能区排污总量,保障饮水安全、供水安全和生态安全。排水采用污废合流,中水用于绿化浇灌、道路冲洗。本项目根据需要设置用水分区,确保用水点无超压出流现象;采用高性能的管材管件,确保无漏损;所有卫生器具采用节水型产品,均采用一级能效产品。
3.节材与材料资源利用
本项目建筑为钢筋混凝土框架、剪力墙结构,结构形体整体判定为一般不规则建筑。项目建筑造型简约。建筑全部采用预拌混凝土,建筑砂浆采用预拌砂浆,混凝土结构 400Mpa 及以上受力普通钢筋用量比例最低占钢筋总用量大于 85%。
4.室内环境质量
本项目外墙采用外保温系统,建筑围护结构未产生结露现象。对建筑围护结构采取有效的隔声、减噪措施。
新风采用新风换气机,设置排风热回收装置,以有效利用排风中的冷热量。夏季制冷采用变冷媒流量多联空调系统,按楼层及房间功能划分系统,按需开启空调系统,灵活高效。
5.建筑智能化
本项目采用车辆运行综合调度监控技术,实时集中监控功能和各系统之间协调联动功能两大部分。通过综合监控调度, 可实现对电力设备、火灾报警信息及其设备、车站环控设备、环境参数、屏蔽门设备、防淹门设备、电梯设备、门禁设备、自动售检票设备、广播和电视设备、乘客信息显示系统的播出信息和时钟信息等进行实时集中监视和控制功能。还可实现晚间非运营情况下、日间正常运营情况下、紧急突发情况下和重要设备故障情况下各相关系统设备之间协调互动。
总平面图
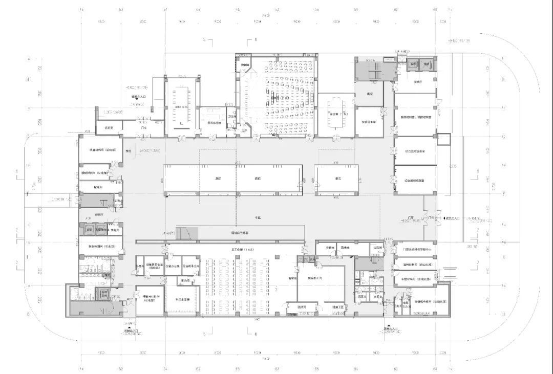
一层平面图
二层平面图
三层平面图
四层平面图
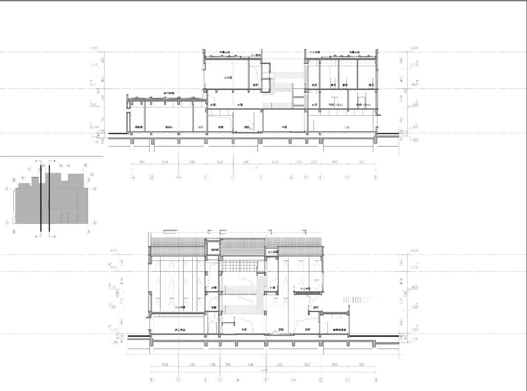
剖面图
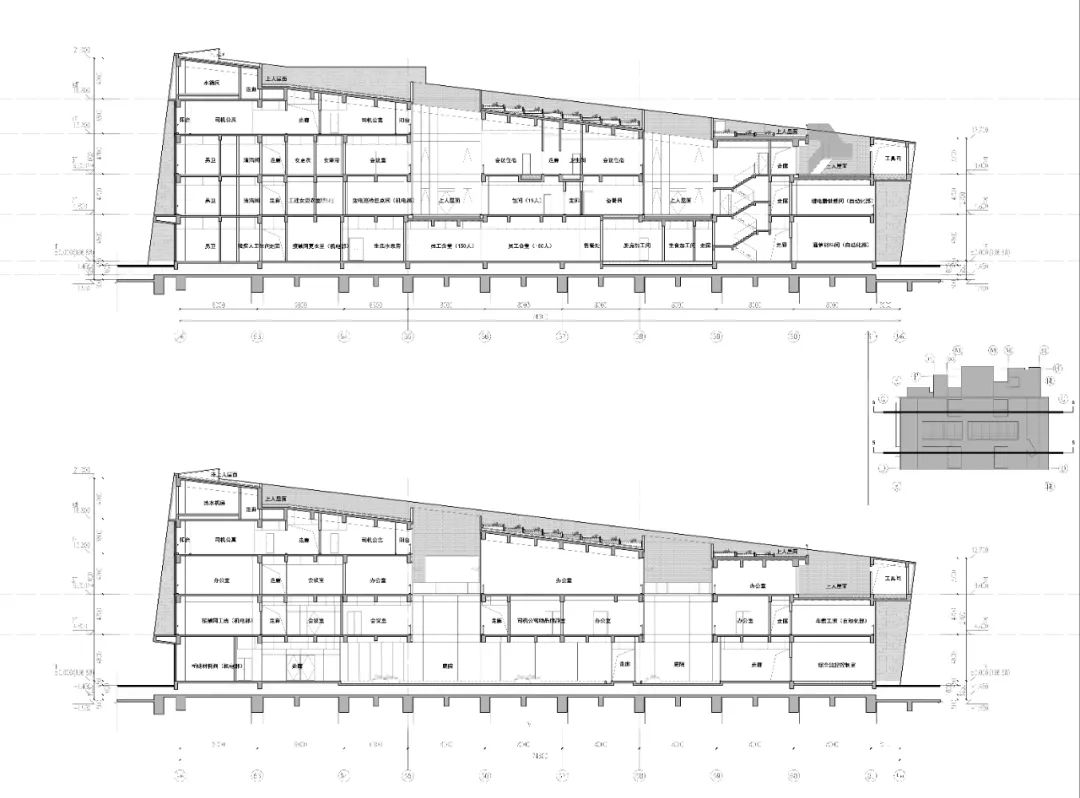
剖面图
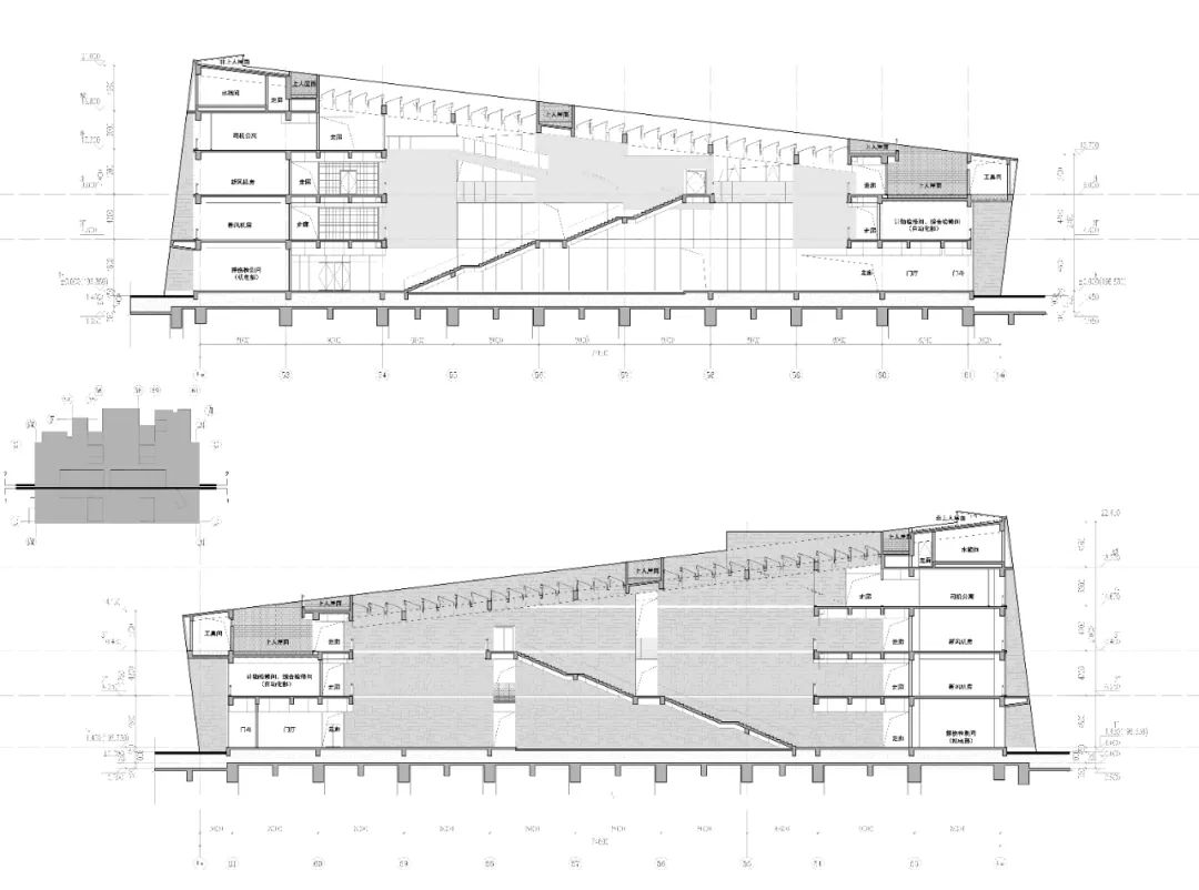
剖面图
立面图
立面图
竞赛其他获奖作品将于近期在“Active House”微信公众平台公布,敬请期待。

▲现场直击「2021 Active House Award中国区竞赛」参赛作品评审会圆满落幕
▲重磅!2021 Active House Award中国区室内竞赛获奖名单正式发布
▲卧龙自然保护区都江堰大熊猫救护与疾病防控中心

家居
工程




我要评论/留言