旧厂房的艺术改造——摩根•达赫学院
浏览量: 收藏
建筑位置:哥本哈根 丹麦
建筑类型:老厂房改造
建筑师:弗兰克•迈阿里和杰马•拉兰达 丹麦
建筑类型:老厂房改造
建筑师:弗兰克•迈阿里和杰马•拉兰达 丹麦
屋顶窗与建筑环境空间的结合,蕴藏丰极其丰富的设计可能性,屋顶窗与屋顶间的结合,创造了独特的建筑空间,而且能有效地改善室内深处的自然采光和通风条件。
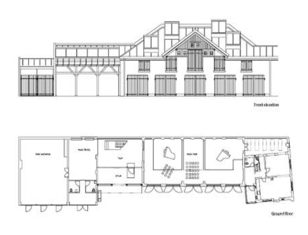
在哥本哈根布亚吉岛码头工人居住区,古典而现代的摩根•达赫音乐学院搬进了这座始建于20世纪初的印刷工厂,改装的这里曾作为车辆维修车厂。改装后的厂房光线充足而宽敞,成为设计师弗兰克•迈阿利和杰马•拉兰达共同努力的成果。
在哥本哈根布亚吉岛码头工人居住区,古典而现代的摩根•达赫音乐学院搬进了这座始建于20世纪初的印刷工厂,改装的这里曾作为车辆维修车厂。改装后的厂房光线充足而宽敞,成为设计师弗兰克•迈阿利和杰马•拉兰达共同努力的成果。
改建前,设计师弗兰克•迈阿里和杰马•拉兰达就很清楚他们需要的光线的效果,更清楚的知道阳光对于新建筑的特别意义与重要性,否则这座建筑物绝不会成为音乐学校。从立面几个竖窗进入的微量光线不能满足功能需求,他们决定从屋顶安装屋顶天窗引进高位侧光线,当太阳处于最高点时,大厅充满了柔和而集中的光线。


自然光从三面、分两层进入大音乐厅。上下两层被日光联成一体,顶部新安装了威卢克斯屋顶窗,导入的光线照亮了大厅,阁楼格外明亮。除了门廊和超大楼梯外,学院各个房间几乎全漆成白色。砖墙抹灰,但砖工结构清晰可见。走廊的木制顶梁和重型钢梁漆成白色。


家居
工程

我要评论/留言