英国Jubilee码头
浏览量: 收藏
项目: 英国Jubilee码头
国家:英国 康沃尔郡
建筑与上翘式船形结构,风力涡轮与风帽结构相结合,彰显航海美学体验
作者:彼得·布凯南(Peter Buchanan) 摄影:克里斯汀·苏利文(Christine Sullivan)
位于康沃尔郡彭林市(Cornwall Penryn)的Jubilee码头是ZEDfactory建筑师事务所的最新力作,它极大程度地降低了能源消耗和二氧化碳排放。这一建筑为进一步推动环保设计的进步,提高了社区生活质量,以及节能方面的突出特点而备受关注。这座建筑的比尔·邓斯特建筑师事务所也叫零能耗开发工厂,主攻节能建筑项目设计。他们为皮巴蒂信托公司设计的位于苏顿的贝丁顿零能耗开发区BedZED曾经获得了2000年住宅设计大奖赛可持续发展奖。
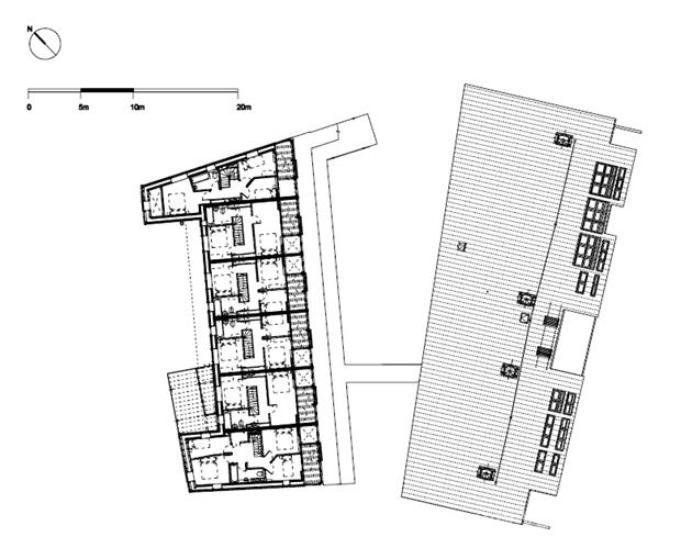
比尔·邓斯特建筑师事务所设计建造了两组建筑,中间的庭院朝向港湾,建筑的首层和庭院抬升1.5米,沿着码头的边缘则留下一部分空地,让它保持自然的标高。沿着朝南的码头建造一个两层的建筑,末端是社区公共设施。庭院的另外一侧是一座四层建筑,上面两层是跃式结构,下面两层是工作室。首层单元可以从庭院进出,在后面的停车场部分则开有运货通道。

跃层部分可以清晰地欣赏到港口的风景,同时也是对BedZED设计的继承和提高。跃层的隔音隔热效果非常精良,楼板及其接缝部分由高性能隔热隔音混凝土构成,通畅的风罩设计和热交换装置实现了良好的通风效果。
两层建筑的立面安装了大量的威卢克斯组合式屋顶窗用于采光,即确保了充足的光照,同时此窗具备良好的保温隔热性更利于冬季保暖。
Jubilee码头项目的目标是实现非常低的能源需求,其能源消耗水平大约在50千瓦/平方米左右。这就要求设计中所采用的产品绝缘标准应当非常高;特殊的密封防护结构;利用风能实现取暖和通风,避免风扇耗能;低热水指标设备;最大程度地确保安装电器设备标准的一致性。为了实现零碳排放目标,该项目安排了4个6千瓦风轮机,1个75千瓦木料生物质燃料带仓库锅炉,和太阳能热水系统。另外,在线路铺设上还为将来安装小型风轮机和太阳能板做好了准备。
Jubilee码头项目的目标是实现非常低的能源需求,其能源消耗水平大约在50千瓦/平方米左右。这就要求设计中所采用的产品绝缘标准应当非常高;特殊的密封防护结构;利用风能实现取暖和通风,避免风扇耗能;低热水指标设备;最大程度地确保安装电器设备标准的一致性。为了实现零碳排放目标,该项目安排了4个6千瓦风轮机,1个75千瓦木料生物质燃料带仓库锅炉,和太阳能热水系统。另外,在线路铺设上还为将来安装小型风轮机和太阳能板做好了准备。
太阳能板产生的能量可以用于半年左右的热水供应,在冬天则以木料和生物废料为锅炉辅助,以供燃烧,确保热水供应需求。在较矮的建筑前面是码头区,那里建有风轮机,这些风轮机的桅杆安装在铰链板上,这样就可以很方便地把它们降低到地面上进行维护。每一个复式房间的屋顶都安有小型风轮机。这些光电技术的应用确保大楼能源供应可以做到自给自足
建筑研究
比尔·邓斯特(Bill Dunster)在霍普金斯事务所(Michael Hopkins and Partners)工作期间,参与了诺丁汉大学朱比丽校区(Nottingham Jubilee Campus)和保得利大厦(Portcullis House)的设计工作,1999年他成立了自己的设计师事务所,主攻节能建筑项目设计。他为皮巴蒂信托公司(Peabody Trust)设计的位于苏顿(Sutton)的贝丁顿零能耗开发区BedZED(Beddington Zero Energy Development)曾经获得了2000年住宅设计大奖赛(Housing Design Awards 2000)可持续发展奖。这家事务所正准备将自己目前的名称――比尔·邓斯特(Bill Dunster)建筑师事务所改为零能耗开发工厂(ZEDfactory),他们认为这样才能充分体现出所有员工的贡献。

位于康沃尔郡彭林市(Cornwall Penryn)的朱比丽码头(Jubilee Wharf)是ZEDfactory建筑师事务所的最新力作,它极大程度地降低了能源消耗和二氧化碳排放。虽然到目前为止,这座建筑还不能提供所有必需的能源,但是随着装饰部分的升级,这一目标一定会实现。然而,与BedZED项目相比,这一建筑中的关键构件已经有了明显改善(例如风帽结构的改进);而且同BedZED这一开创性的项目一样,朱比丽码头(Jubilee Wharf)也综合了居住和车间单元,从而有效避免了员工无意义的上下班交通时间。这一建筑进一步推动了环保设计中其它方面的进步,提高了社区生活质量,而且由于节能方面的突出特点而备受关注。它为人们提供了优质生活,这对于环保事业的推广是非常重要的,它还让人们觉得与社会和自然之间的距离更短-即拥有了心理满足感,从而淡化了疯狂消费的欲望。
该建筑位于显要地段,是通往彭林市的门户。从港口和东面通往法尔茅斯(Falmouth)的大路一侧看去,这座建筑格外抢眼,因为除了它以外,沿岸的建筑都是毫无个性的商业用房和半工业性结构的用房。这些建筑沿西北方向在商业路(Commercial Road)两侧排列,在此与城市的主干道汇合。在由西向东缓缓下降的山脚处,人们可以清晰地看到港口上的这座新建筑以及它的风力发电机。2002年5月,当安德鲁·马斯顿(Andrew Marston)购买下这块闲置了将近10年的地皮时,上面散落着一些临时搭建的房屋,为此他不得不叫人逐一拆除,并拒绝了原地皮主人提出的共同开发利用的建议。
在这一工程中,项目工程,业主和建筑师三者似乎达到了最完美的统一。马斯顿是一个百年不遇的好业主,非常重视建筑的长期质量和对社会的积极影响。在他的家族中,已有五代人从事建筑、物业和饭店产业。当他购买这块土地125年的租赁权时,当然希望这片产业能够给自己的后代子孙带来福利,同时也希望能够借此推动彭林地区的复兴。所以,他特别关心如何降低运转成本和能源消耗的问题,并且也很关心建筑自身是否具有较高的未来适用性(future proofing),以确保未来更新换代工作的顺利实现。
马斯顿的最初设想是在中心地带建造一个社区性庭院,它的周围则是一系列艺术工作室。马斯顿本人就是一位工艺师,他深知工艺品业在康沃尔郡经济中的重要地位,而且这里所生产的工艺品很多都直接销往外地。如果生产的工艺品能够在本地获得更多的展示机会,将会给康沃尔和它的工艺品从业者带来积极的影响。经过和本地人沟通,他还计划建设一所幼儿园,一所多功能会所(用于瑜伽等等),和社区组织办公室。所有这些项目占据了整个开发工程的一半左右,使它有资格获得欧洲地区开发基金(European Regional Development Fund)第一优惠(Objective One)是政策的支持(这一政策在英国仅适用于康沃尔和威尔士地区),这一基金所给予的支持占总建筑成本的三分之一左右。另外,由于此项目具有很高的社会公益性,所以当地政府还给予了一定的支持。
马斯顿考察了很多建筑师事务所,最终选择了ZEDfactory,因为他特别欣赏这个事务所的工作风格,它设计的社区一贯忠实遵守BedZED宗旨,有力推动了社区居民的高尚生活品质。该设计也完美地融入了本地区的总体规划,建造的社区面向朝南的码头,而后面则建造一个停车场。但是,停车场的建造使部分黄金地段没有得到充分利用,而且码头边缘也会经常遭受洪水的威胁。(邓斯特对总体设计的反对,以及另类的建筑外观引起了规划者的内部分歧。但是,在2003年时纽约发生大规模电力瘫痪,以及后来伦敦部分地区出现的停电事故,所有这些事实都有力地证明了其新设计思路的正确性。)
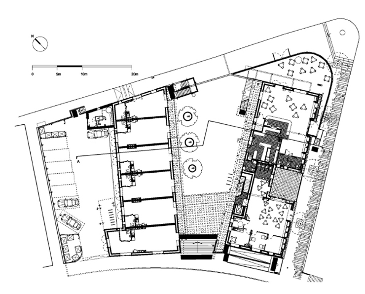
ZEDfactory事务所建议建造两组建筑,中间的庭院朝向港湾,建筑的首层和庭院抬升1.5米,沿着码头的边缘则留下一部分空地,让它保持自然的标高。沿着朝南的码头建造一个两层的建筑,末端是社区公共设施,中间则属于需要布置管道的房间(例如厨房,厕所,和更衣室等等)。在首层相对高于街道的坡道部分,建造一个确保开端计划(Sure Start)的幼儿园,并在外边配备一个南向有屋顶的娱乐区。在这栋建筑的另外一端是一个咖啡屋,外面设有一个木制的露台,处于高于地坪的位置,人们可以在那里享受阳光和美丽的风景。幼儿园以上是办公室,而咖啡屋的上面则是大礼堂。
庭院的另外一侧是一座四层建筑,上面两层是跃式结构,下面两层是工作室。这种结构是邓斯特提出来的,比马斯顿原来的设想却来得更加紧密。(这些房屋是对外出租的,马斯顿自己使用一间,另外一间则卖给了他的母亲,作为她的度假之所。马斯顿的妻子爱丽丝掌管着咖啡屋。)窗子朝向庭院的工作室可以作为铺面之用。首层单元可以从庭院进出,在后面的停车场部分则开有运货通道。二层有一个俯视庭院的工艺品展览室,还有一些与展览室平行的工作室。展览室由一个天桥通往另外一栋较低建筑的楼梯,这个通道还连接着较高建筑后面的一个楼梯,一直延伸到进入跃层入口的展览室,但是却不能通过这里直接走到地面。这些延伸性通道与庭院连接起来,天桥则起着主干道的作用。

跃层部分可以清晰地欣赏到港口的风景,同时也是对BedZED设计的继承和提高。跃层的隔音隔热效果非常精良(300毫米的空心石棉隔离层和高性能窗户确保了这一品质的实现),楼板及其接缝部分由高性能隔热隔音混凝土构成,通畅的风罩设计和热交换装置实现了良好的通风效果。(与BedZED设计相比,这里的风罩更短粗一些,走向上多角形而非曲线形,闪动的彩色三角旗使建筑更具有航海特质。从一定程度上来说,由于海风的腐蚀性和沿海地区较强的风力作用,风帽轴承结构更加坚实,就像福特蒙迪欧汽车的轮毂一样。)两层楼面都设有玻璃结构用于采光,有的玻璃结构高度甚至进行了加倍处理,这不但确保了光照,同时也利于冬季采暖。跃层中较低的一层设有阳台,较高的一层没有阳台,但是设有内开的法式窗户,使室内的部分空间起到了阳台的作用。
下面的工作间在建筑结构上与跃层部分类似。但是,因为利用太阳能的效果较差,所以在冬季要利用地板下的低温取暖系统取暖。(在公共区域(community space)和跃层区都有地板取暖系统,但是很少使用。)而通风是通过侧面安装的电扇来实现的。
两座建筑之间的外形连接十分重要,这决定着庭院有顶区域的环境情况,在这一问题上,设计者采用了计算流体力学(computational fluid dynamics - CFD)的分析方法进行了完善。较低那栋建筑的屋顶进行了精心设计,确保风向在不发生涡流的情况下,使之顺利吹过较低建筑,庭院,和较高建筑,同时也为了能使风流进一步抬高。为此,较低建筑的南墙微微后仰,并且从地面到顶棚呈流线型设计,整个墙体由叠层木梁(laminated timber beams)支撑,墙体外层和所有屋顶都用耐久镀锌板包裹着。(由于这座建筑的外形设计非常科学,其大部分结构都由轻质材料建成,其热质量(thermal mass)则由混凝土楼板结构提供。)
较高一层向外延伸,形成通往咖啡屋的有顶走廊;走廊顶部继续往外延伸,形成引导风流的表面,使之顺利吹过庭院和高层建筑,并在庭院区保持稳定的高气压。这个相对较高的廊顶的南侧下倾,引导气流流向,为安装太阳能板提供光照区域,为将来更换提供方便。
太阳能板产生的能量可以用于半年左右的热水供应,在冬天则以木料和生物废料为锅炉辅助,以供燃烧,确保热水供应需求。在较矮的建筑前面是码头区,那里建有风轮机,这些风轮机的桅杆安装在铰链板上,这样就可以很方便地把它们降低到地面上进行维护。这些风轮机并不是质量最好的,但是安全,而且功能还是很强大的,在出现极强风暴时,叶片不是加速运转,而是折合起来。每一个复式房间的屋顶都安有小型风轮机。这些光电技术的应用确保大楼能源供应可以做到自给自足。
只要可能,工程建设都采用本地材料和人工。例如,利用本地生长的红雪松包裹墙壁,采用本地落叶松原木包裹外部结构腹面。所有木材的砍伐都获得了森林管理委员会(FSC)批准,都取自完全可持续发展地区,包括用于建造咖啡露台的进口耐用红安吉利木都满足这一要求。其它材料,例如咖啡屋中的木地板和礼堂天花板都是回收材料的再利用。用于加固码头边缘的花岗岩镶边石也是废料的重新利用。
不过,施工过程中也不是没有遇到问题。在进行土方填埋时,遇到了一段过去的码头墙(从而导致了设备损坏),还有一个排水沟,经勘测发现与工程规划冲突,因为要处理这些问题,所以使得工期推迟了大约10周的时间。这项工程建设成本的一半来自各方面的捐赠,所以为等待这些资金的足额到位,细部设计也一定程度上有所推迟。但是,一旦这些资金到位以后,施工必须尽快展开,不能等待全部数量的具体实现。这些问题,加上承包商遇到的新技术以及由此引发的一系列问题,使工期比预算多出32周,实际长达67周,这也使建设成本超支60万英镑,使预算上升到360万英镑。但是,马斯顿很有风度地接受了这些问题,他认为主要是由于资金筹措过程使然,承认这是一次正确的长期性投资。建筑内部施工成本是1700英镑/平米,对于这座综合性建筑,在满足低碳指标和小型发电系统要求的前提下,这一造价标准是相当低的。
对于这一建筑项目的评价,需要等它完全融入该地区生活,并监测其环境系统指标后进行。但是,在它仅仅对外开放半周时间后,就显示出了很强的生机活力;沿街的自行车店,和建筑内的工作室和大礼堂的使用情况都很好,咖啡店更是门庭若市。显然,各种设施的正确布局使邓斯特的最初设想完全实现了――“让合适的活动,在合适的地点,合适的时间顺利进行。”可能有人觉得这座建筑的外观有点儿古怪,和周围的建筑似乎有点儿格格不入,但是,因为它将建筑和上翘式船形相结合,加上风轮机和风帽呼呼作响地工作,给人一种熟悉的航海工作的感受,所以它与周围环境又是和谐统一的。
这个项目还考虑到了所在地段的坡道因素,坡顶之后是建筑物,往前下去则是开阔的码头,而屋顶向后延展的样式又呈现出一种和蔼的欢迎姿态。庭院的顶棚设置具有良好的防风防雨性能。现在,人们对它已经产生了兴趣,正在这里筹划一场工艺品展览,同时它还可以用作农副产品市场,以及其它用途。将来,这里还要植树,完工后的庭院也没有进行过多处理,其目的就是为了以后规划方便,便于进一步完善,也许可以设置一些长椅,或者其它什么东西。
如果有人会对这一项目设计提出批评的话,那么极有可能会说它没有充分利用南面的码头,而且后仰的墙壁也会给人一种冷冰冰,缺乏热情的感觉。尽管这里经常涨水,冬天的风时而肆虐,还具有腐蚀作用,但是很多人仍然觉得这是一个难得的好去处。当然,咖啡屋的露台本应沿着码头再往后移动一些的,但是现在预留出来的空间则更有助于降低风轮机的高度。而且,正如马斯顿指出的那样,这种设计使码头的空地看起来更像一个公共用途的散步广场。
显然,朱比丽码头项目又是绿色建筑设计领域的一个里程碑,也是给予坚守信念的业主和建筑师的一个完美礼物。对于某些评论家和建筑师来说,他们可能后悔自己当初没有致力于此类生态环保事业,他们也大可不必把注意力放在工程工期延长和成本超支等问题上,因为这些缺点从长远利益来看是微不足道的。这座建筑并不代表着什么市场潮流,而是预告着未来的必然趋势。人们应该以此为榜样,努力实践并逐步完善,因为这样做并不存在多大困难,顿斯特已经向我们证明了其所需技术的可行性。
机电(M&E),能量和建筑物理学
为了应对气候变化,同时也为了节约成本,朱比丽码头(Jubilee Wharf)建筑项目的维护更新必须逐步进行。大型项目可以独立划拨时间用来对设施进行升级和维护,但是如果维修规模是小型的,则常常不可避免地引发设计与建设投入之间的两难选择。为了解决这一问题,该项目采用的方法是选用一家曾经接触过所有必要技术的经验丰富的专业设计团队,从而最大限度地缩短了设计时间。阿路普(Arup)的主要责任就是进行概念设计,为业主提供一整套详细的建筑要求,然后向设计团队提供技术咨询。这种确定设计团队的初期工作包括:只考虑设计团队在过去项目中表现出来的设计品质;根据过去已有的设计能力(而不是凭借低成本)指定专业服务提供商;指定在技术层面上具有丰富经验的建筑师作为设计团队,在建筑现场进行监理。对于这个项目,虽然将某些例如风轮机年发电量之类的可量化因素考虑在内是必要的,但是确定节能规模和可再生能源生产之间的主次顺序则显得尤为重要,这样可以确保有更多的资金用于系统设备的购置。朱比丽码头项目要实现非常低的能源需求,其能源消耗水平大约在50千瓦/平方米左右。这就要求设计中所采用的绝缘标准应当非常高;特殊的密封防护结构;利用风能实现取暖和通风,避免风扇耗能;低热水指标设备;最大程度地确保安装电器设备标准的一致性。为了实现零碳排放目标,该项目安排了4个6千瓦风轮机,1个75千瓦木料生物质燃料带仓库锅炉,和太阳能热水系统。另外,在线路铺设上还为将来安装小型风轮机和太阳能板做好了准备。
克瑞斯·奎恩,阿路普(Chris Twiun, Arup)
成本分析
成本分析根据室内总建筑面积计算。成本项目以最终预算数据为准。
基础工程:
地基/楼板 175英镑/平方米
桩基础(piled foundations);圈梁;防水层/氡防护结构;现浇悬挂式楼板
上层结构:
框架结构(frame) 90英镑/平方米
1号楼 - 重型砌块墙
2号楼 - 砌块,钢结构和胶合木
上部楼层 83英镑/平方米
1号楼 - 150号空心预制混凝土支架,重型砌块内部竖墙。
2号楼 - 砌块内部竖墙(至二层),预制空心支架,木结构至二层
屋顶 68英镑/平方米
1号楼 - 预制空心支架;300毫米石棉隔离层;FSC(森林可持续发展管理协会认证)木框架;克罗博透气薄膜(Klober breather membrane);18毫米FSC胶合板(wbp ply);屋顶排水镀锌层(包括未来适用屋脊风轮机支架);unistrut型钢支座。
2号楼 - 木框架;蒸汽渗透防护墙;300毫米石棉;克罗博透气薄膜;50毫米气隙;18毫米FSC胶合板和排水层镀锌板
楼梯和天桥 90英镑/平方米
1号楼 - 混凝土充填钢结构楼梯和阳台;室内FSC软木楼梯。
2号楼 - 钢结构阳台和楼梯;防海水侵蚀红安吉利木FSC露台;混凝土楼梯
外墙 152英镑/平方米
1号楼 - FSC红松包裹或自然色石灰砂浆涂层重型砌块。
2号楼 - 自然色石灰砂浆涂层砌块;FSC红松包层木墙
窗户和外部门 71英镑/平方米
充氩双面抛光铁艺软木门窗
内墙和隔断 32英镑/平方米
石膏板和贴膜软木隔墙
室内门 21英镑/平方米
实木门含铁艺
室内装饰
墙壁装饰 51英镑/平方米
白色生态环保涂料;外露FSC软木穿线槽;FSC软木裙线和门窗嵌线
地板装饰 25英镑/平方米
1号楼 - 家居高毛含量地毯,陶瓷地砖;天然马莫勒姆(Marmoleum)地毡;环氧漆。
2号楼 - 陶瓷地砖,酒吧间可再生木地板;大厅FSC橡木地板;天然马莫勒姆(Marmoleum)地毡
天花板装饰 13英镑/平方米
1号楼 - 居室FSC软木线槽;白色生态环保漆。
2号楼 - FSC软木线槽;白色生态环保漆;贴膜石膏板;0级可再生木地板
配件和家居饰品
家具 17英镑/平方米
1号楼 - 厨房单元和工作间茶点装饰
2号楼 - 厨房单元装饰
室内设施
卫生用具 31英镑/平方米
厕所,花洒,浴盆和洗脸盆
机械装置 242英镑/平方米
1号楼 - 木料生物质燃料锅炉及储藏室;配管及水箱的太阳能热水板装置;风帽;管道系统和热交换通风装置;地板下取暖管线和附件。
2号楼 - 配管及水箱的太阳能热水板装置;风帽;管道系统;地板下取暖管线和附件;风轮机
电气设施 96英镑/平方米
船载设备分电器(electrical points);机械安装中的电气安装;低能室内外照明附件
电梯安装 12英镑/平方米
2号楼 - 残障人士用电梯和货运电梯
外部装饰
美化装饰,附属结构,排水 165英镑/平方米
基本设施和保障
基本设施,顶部装饰和公益设施 278英镑/平方米
家居
工程

我要评论/留言