威卢克斯中国办公楼-极简的阳光盒子
浏览量: 收藏
威卢克斯中国办公楼是中国第一个“Active House”实践案例。由中国建筑科学研究院对建筑外墙、屋面、外窗、建筑整体气密性、室内环境及空调通风系统的性能测试数据表明,整个大楼的实际年电耗水平为33kwh/㎡/a,为中国此类建筑平均能耗的五分之一。
项目信息建筑类型:
办公楼建筑设计:丹麦总部BI部门
建 筑 师:亨里克•诺兰德•史密斯(丹麦)、涅什卡•希维尔切夫斯卡(丹麦)、郭成林(中国)
能源工程师:艾默里克•诺韦尔(法国)采光分析:丹麦总部EDIC部门、威卢克斯(中国)有限公司
能源概念设计:丹麦科威(COWI)咨询公司
能源施工设计:法国公司特瑞欧(TERAO)公司
项目地点:河北廊坊经济技术开发区百合道21号建筑面积:2080平方米
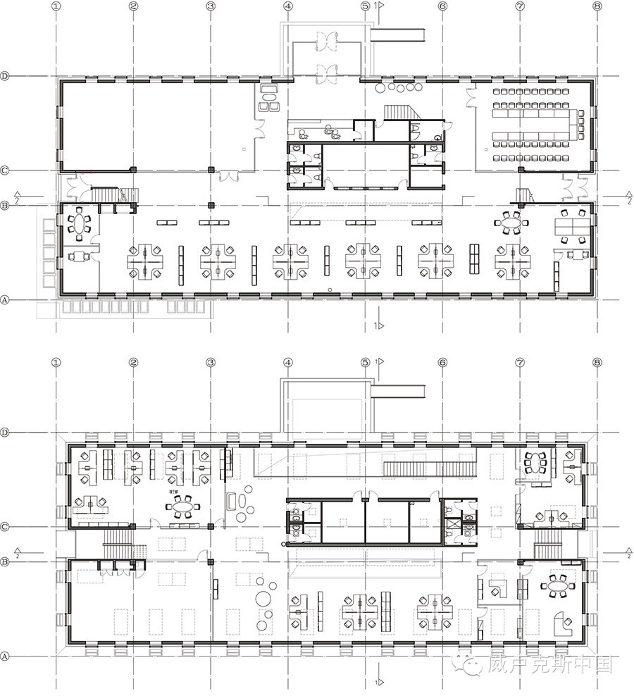
立面设计是低能耗建筑物的关键,这需要“智能”的立面设计和门窗布局,从而在冬季被动式太阳能供暖、夏季遮阳、日光捕获和自然通风中间找到制衡点。与绝大多数传统办公楼相比,梯形的设计更富动感,传递出阳光在屋顶窗间的流动感受。
阳光透过倾斜的建筑立面径直射入建筑物内部。办公室之间的玻璃隔墙、开放式楼梯和吊顶缝隙均保障了室内完美的日光覆盖。白色的墙体和吊顶既美观又经济,且可最大程度地降低照明用电。
建筑立面和地下空间,由296樘威卢克斯窗组成的多条采光带,建筑中庭位置采用VMS商用天窗系统,加速室内自然的通风换气。
建筑中庭VMS商用天窗和立面威卢克斯窗组成采光带,带来充足的日光减少了人工照明的使用。同时畅快的自然通风,利于炎热季节的散热。
能源效率
建筑主动蓄热/冷系统:这是一种在混凝土板中嵌入水管道的采暖/冷网络系统。搭配地源热泵和室外风机组(风量可变),建筑蓄热/冷系统能创造舒适室内气候并且可以大幅度节能。— 高效保温隔热且不透风的围护结构有效降低了冬季的热损失。岩棉保温地板:250 mm厚;屋顶:200 mm厚;墙体:200 mm厚。— 基于二氧化碳智能控制的通风系统— 使用VMS商用天窗系统和智能电控窗— 太阳能集热器,用于室内生活热水供应— 智能控制的室内外遮阳帘,隔热效果极佳,减少炎热天气的制冷耗能— 热泵:利用土地热能,对建筑进行制冷或供暖
建筑能耗监控
工作娱乐两相宜
Active House主动式建筑
家居
工程








我要评论/留言