商住综合体
浏览量: 收藏
项目信息
项目位置:奥地利 维也纳

从城市规划来讲,该建筑的地块在当地来讲可谓“巨大”,其东边城区建筑密度较高,西侧是独立或多层居住区以及运动场地,相对密度较低,有些郊区的感觉。Doninpark 的造型独具个性,尤其是其东侧的巨大悬挑空间甚至跨在了道路之上,给人相当震撼的感觉。建筑全身素裹,底层的商业采用深色,让建筑看上去像浮在地面上的一 艘大船。立面上凹凸不一,有些是房间有些是阳台,加上大小的方块窗,像是一面巨大的立体马赛克,非常具有立体感。




项目位置:奥地利 维也纳
建筑设计:LOVE architecture and urbanism建筑事务所
设计团队: DI Andreas Perchinig, DI Sabine Sternbach
建筑面积: 15,000 sqm
日期: 2013年
摄影: Jasmin Schuller

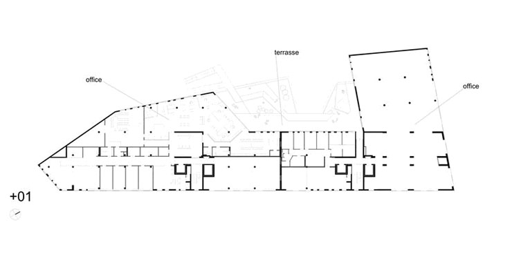
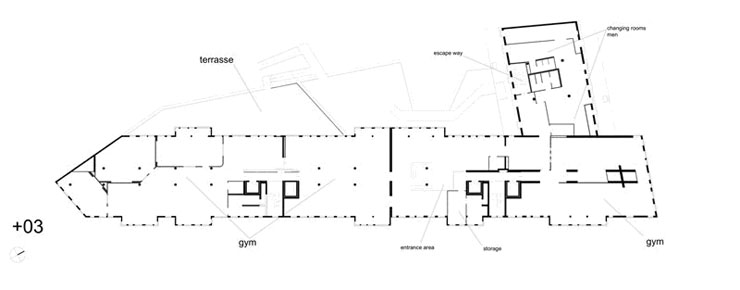
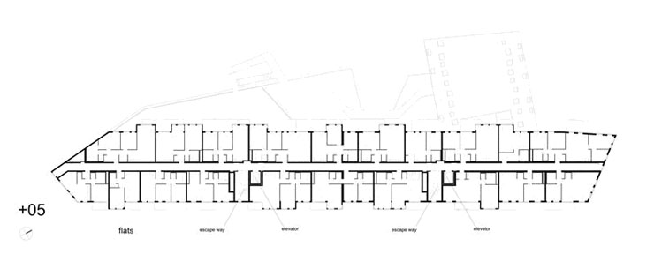
Doninpark 商住综合体是一栋8层的集住宅、办公以及零售商业为主的综合体建筑,位于维也纳Kagraner Platz地铁站背后。在城市规划方面,这栋楼很有特色,设计新颖。东边是城区,建筑比较密集,而西边多是家庭住房和运动场地,更有郊区的感觉。
从城市规划来讲,该建筑的地块在当地来讲可谓“巨大”,其东边城区建筑密度较高,西侧是独立或多层居住区以及运动场地,相对密度较低,有些郊区的感觉。Doninpark 的造型独具个性,尤其是其东侧的巨大悬挑空间甚至跨在了道路之上,给人相当震撼的感觉。建筑全身素裹,底层的商业采用深色,让建筑看上去像浮在地面上的一 艘大船。立面上凹凸不一,有些是房间有些是阳台,加上大小的方块窗,像是一面巨大的立体马赛克,非常具有立体感。




家居
工程

我要评论/留言