葡萄园中的奇石
浏览量: 收藏
项目信息
地点:瑞士,威利斯(Wallis),莱顿(Leytron)
建筑类型:独栋住宅
客户:詹妮克(Janick)及盖依·克劳·朱福雷(Guy-Clau de Zufferey),莱顿(Leytron)
建筑师:瑞士Nunatak建筑师公司萨尔·齐华士(Sarl Chervaz)及维萨克斯(Vassaux)
建筑类型:独栋住宅
客户:詹妮克(Janick)及盖依·克劳·朱福雷(Guy-Clau de Zufferey),莱顿(Leytron)
建筑师:瑞士Nunatak建筑师公司萨尔·齐华士(Sarl Chervaz)及维萨克斯(Vassaux)

莱顿(Leytron),一个位于瑞士华莱士(Valais)州的酿酒小镇。在缠绕的葡萄藤和坚实的岩石围墙之间,一个石板镶贴覆盖的立方体直插云天。这个倾斜的盒子由Nunatak建筑师公司倾力打造,乍眼望去,你决然想象不出它竟是一座民宅。这座建筑不仅展示了设计师希望创造卓越的意愿,同时,它那令人惊叹的精确性也满足了年轻一代的个性需求和当地的气候环境特点条件。
莱顿(Leytron)小镇座落于锡安(Sion)和马蒂尼(Martigny)之间的罗讷河(Rhone)北岸,在旅游手册上几乎难以见到这个村庄的踪影。在那片区域星罗密布的村庄中,多具有许多独特的、受旅行者欢迎的乡村景色,而莱顿(Leytron)并不属于那一类型,它向世人展示的是不同用途与社会抱负的完美融合。位于村子中心的古老仓房依然能让来访者回想起,历史的某一时期这里的居民是完全依靠葡萄种植和葡萄酒酿造为生的。在莱顿(Leytron)的边界有许多现代建筑风格的房屋,它们已几乎与古老的农耕景色和传统失去了联系。这些房子多为后人建造,他们不再需要从事葡萄种植,但仍旧生活在自己祖先的土地上,这或许是因为那是他们的故乡,也可能仅仅是由于那里有他们的父母遗留下来的土地。
朱福雷(Zuffereys)住宅就是这些现代建筑之一,它位于村子的最东边,虽距离公路有50米远,但它的独特仍然吸引了路人的注意。茂盛的葡萄藤向山上借势蔓延,一个灰色的石板盒拔地而起,它就像一个不幸从运输机上滚落下的航空集装箱。作为Nunatak建筑师公司的合伙人,罗兰·维萨克斯(Roland Vassaux)在设计中表现出了与众不同的想法。他写到,“山势奇特,……一座房屋应势而生!”对于背景中高耸入云的L’Ardévaz山体来说,朱福雷(Zufferey)住宅线条轮廓协调完美,简直可以称得上是它的微缩版。按照维萨克斯(Vassaux)的话来说:“建筑只有在特定的地点才能大放异彩”。 外形的相似性并没有完全限制住宅自身的特点,延绵的山势更令这栋散发着天鹅绒般光辉的盒子建筑越发显得神秘。产自当地的石头而经过工业加工后为这栋比例精确的建筑披上了一件精致外衣,为建筑平添了几分粗狂之气。
在一楼的西部,车库的正上方就是父母的卧室。倾斜的墙面安装了威卢克斯的天窗,卓越的保温隔热性使主人在房间里可以尽情的沐浴下午与傍晚的阳光。

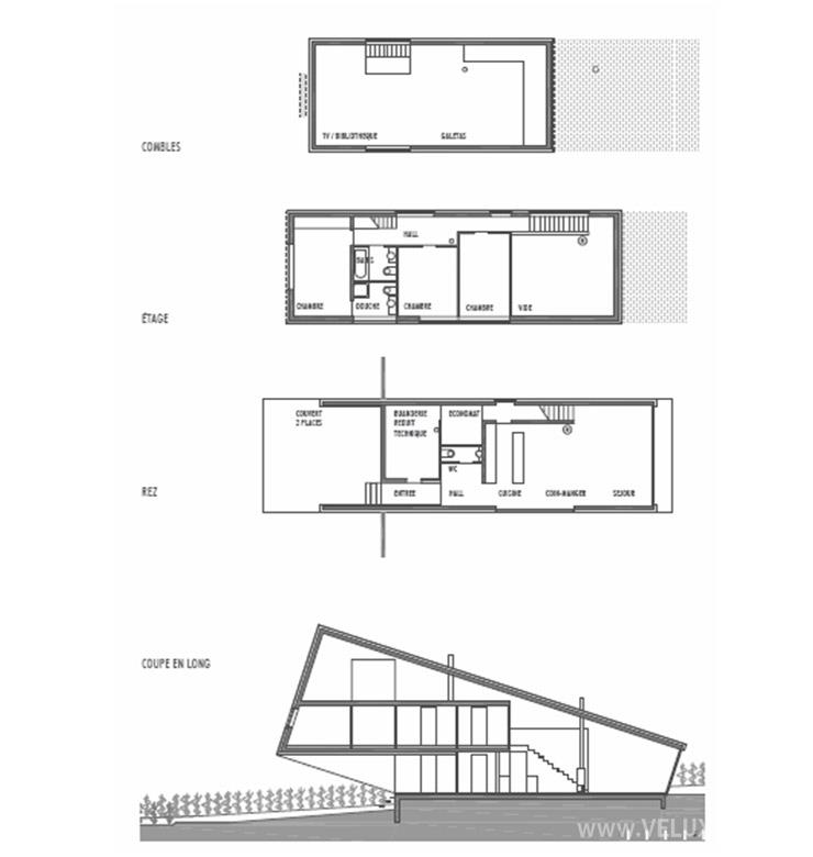
北边的进入通道以“漫步式建筑”的形式穿过房屋所有楼层。不同高度与尺寸的窗户使拥有不同身高的所有居住者都可以欣赏到Leytron本地山峰——L'Ardeva山的风景。

朱福雷(Zufferey)住宅不仅在外型上与当地的建筑传统背道而驰,在朝向设计上也是独树一帜。通常,座落在罗讷河山谷中的房屋都是西南朝向的,可以看得到午后的太阳,但同时也迎着山谷中吹来的恼人的风沙。然而朱福雷(Zufferey)住宅却是面向东方的,这样可以让居住的人在下午时分免受阳光的照射和风沙的困扰。住宅的车库与入口位于西边微微上翘部分的底部。入口的墙体散发着奇特的青黄色光辉,使得这个设计的不凡之处越发的抢眼。作为Nunatak建筑师公司的客户,同时又是公司的建筑绘图师,这样的设计对詹妮克·朱福雷(Janick Zufferey)来说无疑也是一次不小的冲击。在筹划期的数周里,她一直被拒绝进入主设计师的办公室。“他想给我一个惊喜,办公室里的每个人都知道这个计划,而我只有在同事们惊讶的表情中隐约猜到他在着手策划一些令人吃惊的东西。”在设计展示时,罗兰·维萨克斯(Roland Vassaux)第一次向他的客户(詹妮克·朱福雷,即是公司的客户,同时又是此公司的建筑绘图师)展示了这个计划:厨房、客厅、餐厅、客卫以及储藏室都在一楼,二楼则是三室两卫以及带书房和电视间的开放式阁楼。总的来说,这就是一个功能齐全的长方形,设计低调内敛。直到此时,维萨克斯(Vassaux)才让他的制图师对设计有了真正的理解,这令她相当惊喜。
对于一座185平米的建筑来说,50万瑞士法郎的设计施工费用是比较合理的。花费相对较低的主要原因是因为房屋内采用了大量的木质组合配件。只有地基与地板是钢筋混凝土材质;这个倾斜的盒子采用了衫木胶合层结构。内墙(以及卫生间墙面)则选用欧松板,部分位置用防水涂料密封;二楼的地板及天花板则完全采用衫木板制成。为了降低成本,住宅底层的地面使用混凝土浇铸而成,并且铺设了地热采暖管道。
对于一座185平米的建筑来说,50万瑞士法郎的设计施工费用是比较合理的。花费相对较低的主要原因是因为房屋内采用了大量的木质组合配件。只有地基与地板是钢筋混凝土材质;这个倾斜的盒子采用了衫木胶合层结构。内墙(以及卫生间墙面)则选用欧松板,部分位置用防水涂料密封;二楼的地板及天花板则完全采用衫木板制成。为了降低成本,住宅底层的地面使用混凝土浇铸而成,并且铺设了地热采暖管道。
在某些地方,客户要求有采光,但是并不需要视觉上的连接,例如,在二楼卫生间之间加装白色半透明亚克力玻璃板。
从住宅外面看,处于水平状态的窗户是这个建筑最吸引人们眼球的元素,这些窗户与内部空间相互协调,使得每一个房间的设计风格都迥然各异。住宅中所有的窗户都大小不同,并且被安装在不同高度上,即使是孩子们,也可以透过窗户看到外面的山谷、葡萄园以及周围群山的美景了。而沿着房子北边的正面客厅经由两段独立楼梯上升到电视房的“移步换影”设计尤其让人印象深刻。当居住者将灰色涂漆的百叶窗放下来遮挡落日阳光时,这个住宅的外观,就像一个巨大的人造磐石,虽与周围的大山融为一体,却在整个高山全景中彰显着孤傲,又丝毫不影响自身的魅力。
建筑物的倾斜状态同样具有功能性作用。在向上倾斜的西端之下,有一个隐蔽的车库和房屋入口,如此设计使其免受天气变化的侵袭。
据詹妮克·朱福雷(Janick Zufferey)说,他们的房子曾经是一件标新立异的杰作。过去在当地是找不到这样的新式建筑的,他们的设计申请能够获得一致通过,主要归功于莱顿(Leytron)的前任社区主席,詹妮克·朱福雷(Janick Zufferey)说,那位主席也是一位狂热的建筑爱好者。起初这里只有朱福雷(Zufferey)住宅,慢慢地也有邻居搬了过来。住宅的旁边又建起了一栋乡村风格的木屋,房子的正面被刷成了向日葵黄色,在葡萄园间闪闪发光。在此期间,社区通过了一项土地使用规划,明令禁止在葡萄园里修建新的建筑,而朱福雷(Zufferey)一家就可以永远欣赏到未受破坏的L’Ardévaz美景了。
家居
工程

我要评论/留言